成約済 パークハウス平河町 13階
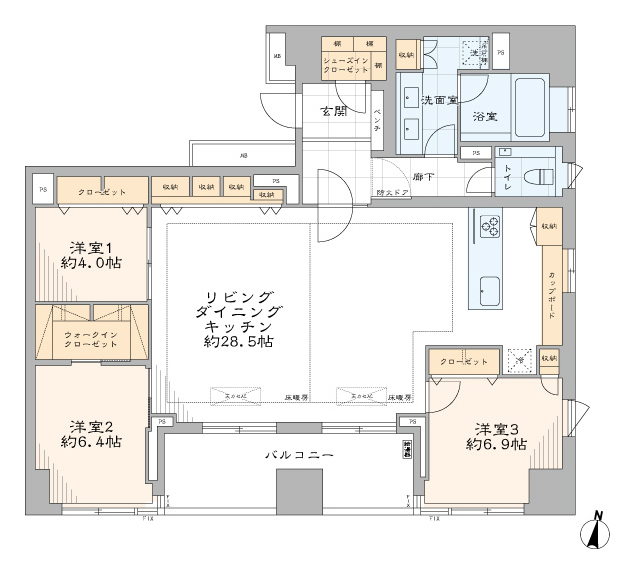
3LDK/111.09m²

















「麹町」・「半蔵門」駅徒歩4分。半蔵門・麹町を庭にする、千代田区平河町のプライベートレジデンス。111㎡、南東向きワイドスパン角住戸
◆交通・ライフインフォメーション
[交通]
①東京メトロ有楽町線「麹町」駅 徒歩4分
②東京メトロ半蔵門線「半蔵門」駅 徒歩4分
③東京メトロ半蔵門線・南北線・有楽町線「永田町」駅 徒歩6分
[ライフインフォメーション]
①買物施設
ココスナカムラ麹町店 徒歩3分
ローソン平河町一丁目店 徒歩1分
どらっぐぱぱす麹町店 徒歩3分
②医療施設
半蔵門病院 徒歩9分
③教育施設
平河町ちとせ保育園 徒歩5分
千代田区立麹町幼稚園 徒歩7分
千代田区立麹町小学校 徒歩5分
千代田区立麹町中学校 徒歩4分
④その他
清水谷公園 徒歩6分
千鳥ヶ淵公園 徒歩13分
一番町児童館 徒歩8分
半蔵門駅前郵便局 徒歩6分
三井住友銀行半蔵門駅前出張所 徒歩6分
◆管理形態・修繕履歴・共用部
[管理形態]
管理会社 三菱地所コミュニティ(株)
管理形態 全部委託
管理員 日勤
[修繕履歴]
2020年 6月 大規模修繕工事済
[共用施設・設備]
オートロック・宅配ボックス
駐車場:月額39,000円 ※空無
駐輪場:月額100円~200円 ※空無
※ご案内について
ご興味をもっていただいたマンションと合わせて、比較検討物件のご内覧をお勧めしております。弊社は、2006年の創業以来、都心部を中心に1700戸を超えるリノベーションマンションの引渡し実績があります。仲介に関する知識だけでなく、リノベーションに関しても経験豊富な専門スタッフがお客様の目線に立って、比較ポイントなどをご案内いたします。
物件概要
東京メトロ半蔵門線「半蔵門」駅 徒歩4分
東京メトロ半蔵門線・南北線・有楽町線「永田町」駅 徒歩6分
- 情報更新日 2026/02/04
物件の設備状態や改修状況は、必ずご契約前に現場または付帯設備表等でご確認ください
※物件の各種情報及び周辺状況の記載が現状と異なる場合は、現状優先となります
※販売状況は随時更新しておりますが、お客様からの問い合わせ時点で実際の状況と異なる場合がございます
※掲載されている完成予想図は設計段階の図面を基に描き起こしたもので、実際とは異なる場合がございます。なお、予想図に描写されている家財道具は販売対象には含みません。可視性を高めるため壁の一部を透過描写している場合がございます。
マップ
東京都千代田区平河町1-6-13
この物件を見ている方におすすめの物件
株式会社LogSuite本店ショールーム
0120-991-657
LogSuiteは、利便性とステイタスを兼ね備えた高級物件を数多く取り扱っています。 天然木を多用した高級リノベーション物件「Logmansion」ブランドも好評展開中。都心で物件を探している方、ぜひお問い合わせください。
MORE DETAIL

