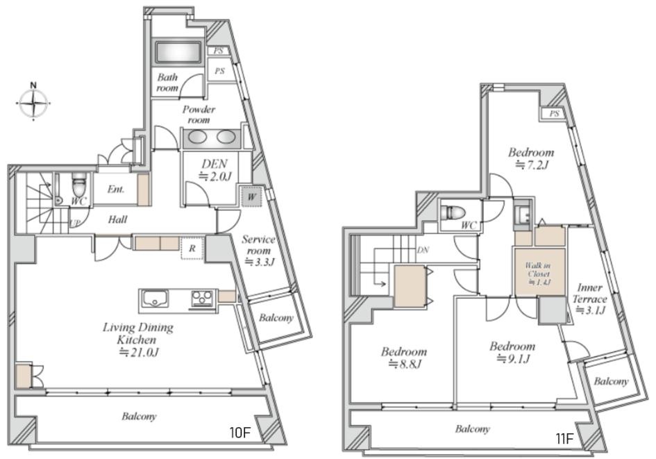
グランドメゾン紀尾井坂 10階・11階
3LDK+S/118.77m²/25,800万円






設備概要
「麹町」駅徒歩2分。紀尾井町の静謐と都心を掌握する利便性を兼ね備えた邸宅。メゾネットタイプの陽当たり良好な最上階・南東角住戸
◆交通・ライフインフォメーション
[交通]
①東京メトロ有楽町線「麹町」駅 徒歩2分
②東京メトロ半蔵門線「半蔵門」駅 徒歩6分
③東京メトロ半蔵門線・南北線・有楽町線「永田町」駅 徒歩7分
[ライフインフォメーション]
①買物施設
成城石井 麹町店 徒歩3分
セブンイレブン麹町3丁目店 徒歩1分
ココカラファイン麹町店 徒歩3分
②医療施設
半蔵門病院 徒歩11分
③教育施設
マッシュの森保育園 徒歩6分
千代田区立麹町幼稚園 徒歩8分
千代田区立麹町小学校 徒歩6分
千代田区立麹町中学校 徒歩4分
④その他
清水谷公園 徒歩3分
千鳥ヶ淵公園 徒歩15分
一番町児童館 徒歩9分
麹町本通郵便局 徒歩7分
三菱UFJ銀行 麹町支店 徒歩2分
◆管理形態・修繕履歴・共用部
[管理形態]
管理会社 積水ハウスGMパートナーズ(株)
管理形態 全部委託
管理員 巡回
[共用施設・設備]
オートロック
ペット飼育可:細則有
※ご案内について
ご興味をもっていただいたマンションと合わせて、比較検討物件のご内覧をお勧めしております。弊社は、2006年の創業以来、都心部を中心に1700戸を超えるリノベーションマンションの引渡し実績があります。仲介に関する知識だけでなく、リノベーションに関しても経験豊富な専門スタッフがお客様の目線に立って、比較ポイントなどをご案内いたします。
ローンシミュレーター
(税込)
この毎月のローン返済額は、あくまで試算であり実際のご返済額とは異なる場合があります。お借り入れの可否や金利・返済額の諸条件は、金融機関にご確認ください。
※低金利の時代だから極力、資金をお手元に残すことを希望のお客様が増えています。
※お一人でローンを組む場合、ご年収の8から10倍程度が借入可能額の目安です。
※ご夫婦での収入合算やペアローンもそれぞれのご年収に応じてお借入可能です。
※詳細は、営業担当者にお問い合わせください。
物件概要
東京メトロ半蔵門線「半蔵門」駅 徒歩6分
東京メトロ半蔵門線・南北線・有楽町線「永田町」駅 徒歩7分
- 情報更新日 2026/02/12
- 更新予定日 2026/02/26
物件の設備状態や改修状況は、必ずご契約前に現場または付帯設備表等でご確認ください
※物件の各種情報及び周辺状況の記載が現状と異なる場合は、現状優先となります
※販売状況は随時更新しておりますが、お客様からの問い合わせ時点で実際の状況と異なる場合がございます
※掲載されている完成予想図は設計段階の図面を基に描き起こしたもので、実際とは異なる場合がございます。なお、予想図に描写されている家財道具は販売対象には含みません。可視性を高めるため壁の一部を透過描写している場合がございます。
マップ
東京都千代田区麹町4-3-6
この物件を見ている方におすすめの物件
株式会社LogSuite本店ショールーム
0120-991-657
LogSuiteは、利便性とステイタスを兼ね備えた高級物件を数多く取り扱っています。 天然木を多用した高級リノベーション物件「Logmansion」ブランドも好評展開中。都心で物件を探している方、ぜひお問い合わせください。
MORE DETAIL

