グランシティ三田・三ノ輪 4階
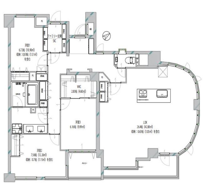
3LDK/115.43m²/24,800万円





「白金高輪」駅徒歩7分。都心の利便と落ち着きある暮らしの両方を実現。専有面積115㎡超。ワイドサッシで開放感のある住戸
◆交通・ライフインフォメーション
[交通]
①東京メトロ南北線・都営三田線「白金高輪」駅 徒歩7分
②東京メトロ南北線・都営大江戸線「麻布十番」駅 徒歩11分
③都営三田線「三田」駅 徒歩14分
[ライフインフォメーション]
①買物施設
まいばすけっと南麻布古川橋店 徒歩6分
ローソン 南麻布店 徒歩5分
ドラックストア マツモトキヨシ白金高輪店 徒歩5分
DCM三田店 徒歩6分
②医療施設
古川橋病院 徒歩6分
③教育施設
太陽の子 三田五丁目保育園 徒歩4分
港区立赤羽幼稚園 徒歩13分
港区立御田小学校 徒歩10分
港区立三田中学校 徒歩11分
④その他
亀塚公園 徒歩10分
有栖川宮記念公園 徒歩16分
港区豊岡児童館 徒歩6分
南麻布二郵便局 徒歩3分
みずほ銀行 麻布支店 徒歩8分
◆管理形態・修繕履歴・共用部
[管理形態]
管理会社 三菱地所コミュニティ(株)
管理形態 全部委託
管理員 日勤
[共用施設]
オートロック・宅配ボックス
ペット飼育可:細則有
駐車場:月額34,000円~43,000円 ※空無
駐輪場:月額300円~500円 ※要確認
※ご案内について
ご興味をもっていただいたマンションと合わせて、比較検討物件のご内覧をお勧めしております。弊社は、2006年の創業以来、都心部を中心に1700戸を超えるリノベーションマンションの引渡し実績があります。仲介に関する知識だけでなく、リノベーションに関しても経験豊富な専門スタッフがお客様の目線に立って、比較ポイントなどをご案内いたします。
ローンシミュレーター
(税込)
この毎月のローン返済額は、あくまで試算であり実際のご返済額とは異なる場合があります。お借り入れの可否や金利・返済額の諸条件は、金融機関にご確認ください。
※低金利の時代だから極力、資金をお手元に残すことを希望のお客様が増えています。
※お一人でローンを組む場合、ご年収の8から10倍程度が借入可能額の目安です。
※ご夫婦での収入合算やペアローンもそれぞれのご年収に応じてお借入可能です。
※詳細は、営業担当者にお問い合わせください。
物件概要
東京メトロ南北線・都営大江戸線「麻布十番」駅 徒歩11分
都営三田線「三田」駅 徒歩14分
- 情報更新日 2025/12/18
- 更新予定日 2026/01/01
物件の設備状態や改修状況は、必ずご契約前に現場または付帯設備表等でご確認ください
※物件の各種情報及び周辺状況の記載が現状と異なる場合は、現状優先となります
※販売状況は随時更新しておりますが、お客様からの問い合わせ時点で実際の状況と異なる場合がございます
※掲載されている完成予想図は設計段階の図面を基に描き起こしたもので、実際とは異なる場合がございます。なお、予想図に描写されている家財道具は販売対象には含みません。可視性を高めるため壁の一部を透過描写している場合がございます。
マップ
東京都港区三田5-1-12
この物件を見ている方におすすめの物件
株式会社LogSuite表参道ショールーム
0120-991-657
LogSuiteは、利便性とステイタスを兼ね備えた高級物件を数多く取り扱っています。 天然木を多用した高級リノベーション物件「Logmansion」ブランドも好評展開中。都心で物件を探している方、ぜひお問い合わせください。
MORE DETAIL

