成約済 コスモポリス品川 29階
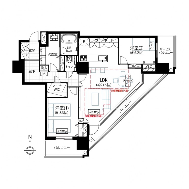
2LDK/90.41m²





















設備概要
- Point.1 最低2年の保証付き
- Point.2 頭金無しでフルローン検討可能
- Point.3 「品川」駅徒歩11分
- Point.4 LDK:約21帖超
- Point.5 角部屋
- Point.6 パノラマウィンドウ
- Point.7 レインボーブリッジ・お台場ビュー(天候による)
- Point.8 眺望良好
- Point.9 ツインボウル洗面
- Point.10 1620サイズの浴室
- Point.11 ホテルライクな内廊下
- Point.12 24時間有人管理
- Point.13 コンシェルジュサービスあり
- Point.14 充実した共用施設
- Point.15 各階ゴミステーションあり(24時間ゴミ出し可能)
- Point.16 ゲストルームあり
- Point.17 ダブルオートロック
- Point.18 ハイルーフ対応駐車場
- Point.19 制震構造
- Point.20 2025年大規模修繕工事実施済
- Point.21 ペット2匹まで飼育可能
- Point.22 バス停至近
- Point.23 区立幼・小・中学校まで徒歩8分圏内
「品川」駅徒歩11分。ベイエリアのタワーレジデンス。レインボーブリッジビューのパノラマウインドウで陽当たり・眺望良好な南西角住戸
◆交通・ライフインフォメーション
[交通]
①JR山手線・京浜東北線・東海道線・横須賀線・京急本線「品川」駅 徒歩10分
②りんかい線・東京モノレール「天王洲アイル」駅 徒歩22分
③都営浅草線・京急本線「泉岳寺」駅 徒歩23分
[ライフインフォメーション]
①買物施設
マルエツ プチ港南シティタワー店 徒歩2分
アトレ品川 徒歩13分
ローソン港南三丁目店 徒歩2分
どらっぐぱぱす品川フロントビル店 徒歩8分
②医療施設
芝浦アイランド内科クリニック 徒歩14分
③教育施設
港区立たかはま保育園 徒歩5分
港区立港南幼稚園 徒歩7分
港区立港南小学校 徒歩8分
港区立港南中学校 徒歩4分
④その他
港区立芝浦中央公園 徒歩8分
港南和楽公園 徒歩6分
港港南郵便局 徒歩11分
三井住友銀行品川支店 徒歩16分
◆管理形態・修繕履歴・共用部
[管理形態]
管理会社 住友不動産建物サービス(株)
管理形態 全部委託
管理員 日勤
[共用施設・設備]
ダブルオートロック・宅配ボックス・コンシェルジュサービス付き
ペット飼育可:1住戸2匹まで
トランクルーム:※要確認
駐車場:月額27,000円~50,000円 ※空有(ハイルーフ対応)
駐輪場:年額1,200円~1,800円 ※要確認
・40階スカイラウンジ・25階シガールーム・3階ライブラリー
・3階ゲストスイート・B1階フィットネスルーム・B1階キッズルーム
・B1階クラブハウス・B1階ビジネスラウンジ・B1階ベンダー&ストイックルーム
・B3階洗車スペース
※ご案内について
ご興味をもっていただいたマンションと合わせて、比較検討物件のご内覧をお勧めしております。弊社は、2006年の創業以来、都心部を中心に1700戸を超えるリノベーションマンションの引渡し実績があります。仲介に関する知識だけでなく、リノベーションに関しても経験豊富な専門スタッフがお客様の目線に立って、比較ポイントなどをご案内いたします。
物件概要
りんかい線・東京モノレール「天王洲アイル」駅 徒歩18分
都営浅草線・京急本線「泉岳寺」駅 徒歩23分
- 情報更新日 2026/01/28
物件の設備状態や改修状況は、必ずご契約前に現場または付帯設備表等でご確認ください
※物件の各種情報及び周辺状況の記載が現状と異なる場合は、現状優先となります
※販売状況は随時更新しておりますが、お客様からの問い合わせ時点で実際の状況と異なる場合がございます
※掲載されている完成予想図は設計段階の図面を基に描き起こしたもので、実際とは異なる場合がございます。なお、予想図に描写されている家財道具は販売対象には含みません。可視性を高めるため壁の一部を透過描写している場合がございます。
マップ
東京都港区港南3-6-21
JR山手線・京浜東北線・東海道線・横須賀線・京急本線「品川」駅 が最寄りの物件
りんかい線・東京モノレール「天王洲アイル」駅 が最寄りの物件
都営浅草線・京急本線「泉岳寺」駅 が最寄りの物件
株式会社LogSuite本店ショールーム
0120-991-657
LogSuiteは、利便性とステイタスを兼ね備えた高級物件を数多く取り扱っています。 天然木を多用した高級リノベーション物件「Logmansion」ブランドも好評展開中。都心で物件を探している方、ぜひお問い合わせください。
MORE DETAIL

