成約済 ザ・パークハウスグラン南青山四丁目 2階
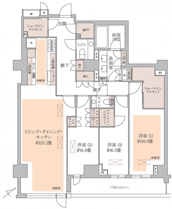
3LDK/123.29m²













「表参道」駅徒歩8分。静寂と洗練が息づく、南青山の高台の上質邸宅。商業施設多数徒歩圏。専有面積120㎡超。収納豊富・陽当たり良好な南東向き3LDK
◆交通・ライフインフォメーション
[交通]
①東京メトロ半蔵門線・銀座線・千代田線「表参道」駅 徒歩8分
②東京メトロ千代田線「乃木坂」駅 徒歩10分
③東京メトロ銀座線「外苑前」駅 徒歩14分
[ライフインフォメーション]
①買物施設
マルシェ西麻布 徒歩4分
表参道ヒルズ 徒歩14分
六本木ヒルズ 徒歩19分
東急プラザ表参道「オモカド」 徒歩20分
東京ミッドタウン 徒歩18分
ミニストップ南青山4丁目店 徒歩3分
スギドラッグ南青山店 徒歩9分
②医療施設
美和メディカルクリニック 徒歩14分
③教育施設
コスモス西麻布保育園 徒歩5分
港区立青南幼稚園 徒歩3分
港区立青南小学校 徒歩3分
港区立青山中学校 徒歩23分
④その他
青山公園 徒歩10分
外苑前郵便局 徒歩13分
みずほ銀行 青山支店 徒歩11分
◆管理形態・修繕履歴・共用部
[管理形態]
管理会社 三菱地所コミュニティ(株)
管理形態 全部委託
管理員 日勤
[共用施設・設備]
オートロック・宅配ボックス・コンシェルジュサービス付き
ペット飼育可:細則有
トランクルーム:月額3,160円 ※要確認
駐車場:月額50,000円~72,000円 ※空有
駐輪場:月額500円~1,000円 ※要確認
・ラウンジ
※ご案内について
ご興味をもっていただいたマンションと合わせて、比較検討物件のご内覧をお勧めしております。弊社は、2006年の創業以来、都心部を中心に1700戸を超えるリノベーションマンションの引渡し実績があります。仲介に関する知識だけでなく、リノベーションに関しても経験豊富な専門スタッフがお客様の目線に立って、比較ポイントなどをご案内いたします。
物件概要
東京メトロ千代田線「乃木坂」駅 徒歩10分
東京メトロ銀座線「外苑前」駅 徒歩14分
- 情報更新日 2026/02/12
物件の設備状態や改修状況は、必ずご契約前に現場または付帯設備表等でご確認ください
※物件の各種情報及び周辺状況の記載が現状と異なる場合は、現状優先となります
※販売状況は随時更新しておりますが、お客様からの問い合わせ時点で実際の状況と異なる場合がございます
※掲載されている完成予想図は設計段階の図面を基に描き起こしたもので、実際とは異なる場合がございます。なお、予想図に描写されている家財道具は販売対象には含みません。可視性を高めるため壁の一部を透過描写している場合がございます。
マップ
東京都港区南青山4-17-35
この物件を見ている方におすすめの物件
株式会社LogSuite本店ショールーム
0120-991-657
LogSuiteは、利便性とステイタスを兼ね備えた高級物件を数多く取り扱っています。 天然木を多用した高級リノベーション物件「Logmansion」ブランドも好評展開中。都心で物件を探している方、ぜひお問い合わせください。
MORE DETAIL

