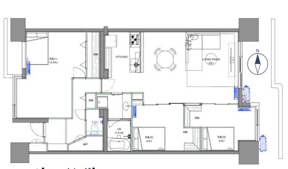
多摩川ハイム3号棟 8階
3LDK/98.14m²/7,830万円





















多摩川河川敷まで徒歩2分。多摩川ビューの緑と開放感に包まれる日常。ゆとりの20帖のLDK、12帖の主寝室。2面採光で陽当たり良好な住戸
◆交通・ライフインフォメーション
[交通]
①東急多摩川線「武蔵新田」駅 徒歩14分
②東急多摩川線「下丸子」駅 徒歩16分
③東急池上線「千鳥町」駅 徒歩26分
[ライフインフォメーション]
①買物施設
東武ストア 下丸子店 徒歩7分
セブンイレブン下丸子多摩堤通り店 徒歩9分
ウェルパーク 下丸子店 徒歩7分
②医療施設
難波メディカルクリニック 徒歩4分
③教育施設
大田区立下丸子保育園 徒歩7分
丸子幼稚園 徒歩12分
大田区立多摩川小学校 徒歩8分
大田区立矢口中学校 徒歩4分
④その他
下丸子公園 徒歩14分
下丸子多摩川公園 徒歩6分
下丸子児童館 徒歩7分
大田下丸子郵便局 徒歩11分
三井住友銀行 矢口出張所 徒歩16分
◆管理形態・修繕履歴・共用部
[管理形態]
管理会社 住商建物(株)
管理形態 全部委託
管理員 日勤
[共用施設・設備]
オートロック
ペット飼育可:細則有
駐車場:月額24,000円 ※空有
駐輪場:月額200円~600円 ※空有
※ご案内について
ご興味をもっていただいたマンションと合わせて、比較検討物件のご内覧をお勧めしております。弊社は、2006年の創業以来、都心部を中心に1700戸を超えるリノベーションマンションの引渡し実績があります。仲介に関する知識だけでなく、リノベーションに関しても経験豊富な専門スタッフがお客様の目線に立って、比較ポイントなどをご案内いたします。
ローンシミュレーター
(税込)
この毎月のローン返済額は、あくまで試算であり実際のご返済額とは異なる場合があります。お借り入れの可否や金利・返済額の諸条件は、金融機関にご確認ください。
※低金利の時代だから極力、資金をお手元に残すことを希望のお客様が増えています。
※お一人でローンを組む場合、ご年収の8から10倍程度が借入可能額の目安です。
※ご夫婦での収入合算やペアローンもそれぞれのご年収に応じてお借入可能です。
※詳細は、営業担当者にお問い合わせください。
物件概要
東急多摩川線「下丸子」駅 徒歩16分
東急池上線「千鳥町」駅 徒歩26分
- 情報更新日 2025/12/10
- 更新予定日 2025/12/24
物件の設備状態や改修状況は、必ずご契約前に現場または付帯設備表等でご確認ください
※物件の各種情報及び周辺状況の記載が現状と異なる場合は、現状優先となります
※販売状況は随時更新しておりますが、お客様からの問い合わせ時点で実際の状況と異なる場合がございます
※掲載されている完成予想図は設計段階の図面を基に描き起こしたもので、実際とは異なる場合がございます。なお、予想図に描写されている家財道具は販売対象には含みません。可視性を高めるため壁の一部を透過描写している場合がございます。
マップ
東京都大田区下丸子2-24-10
この物件を見ている方におすすめの物件
株式会社LogSuite表参道ショールーム
0120-991-657
LogSuiteは、利便性とステイタスを兼ね備えた高級物件を数多く取り扱っています。 天然木を多用した高級リノベーション物件「Logmansion」ブランドも好評展開中。都心で物件を探している方、ぜひお問い合わせください。
MORE DETAIL

