成約済 赤坂グランドハウス 5階
3LDK/144.89m²















設備概要
- Point.1 最低2年の保証付き
- Point.2 頭金無しでフルローン検討可能
- Point.3 「青山一丁目」駅徒歩5分
- Point.4 3駅4路線利用可能
- Point.5 区立小・中学校徒歩10分圏内
- Point.6 明治神宮外苑徒歩圏内
- Point.7 閑静な住宅街に位置
- Point.8 緑豊かな住環境
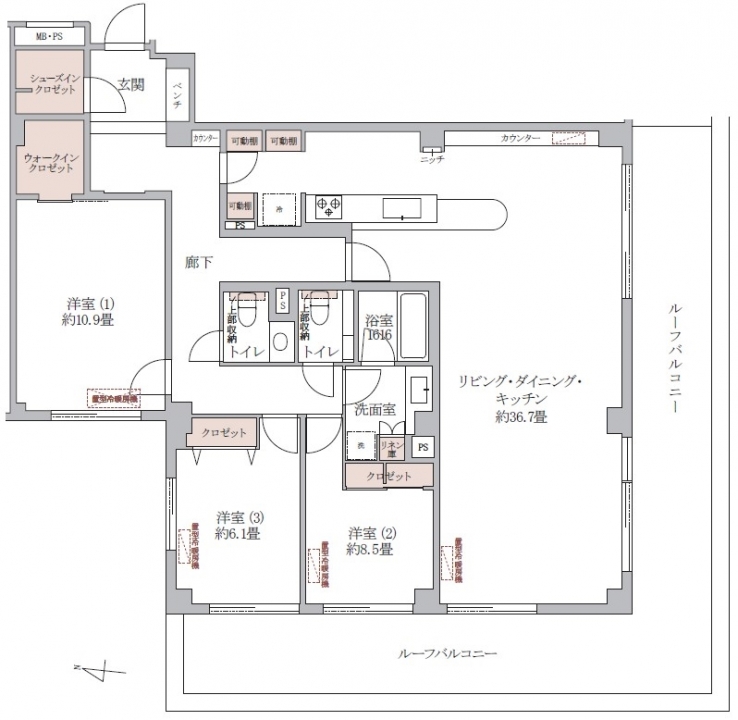
- Point.9 専有面積:144㎡超
- Point.10 LDK:約36帖超
- Point.11 南向きワイドスパン
- Point.12 ルーフバルコニー付き
- Point.13 陽当たり良好
- Point.14 1616サイズのバスルーム
- Point.15 トイレ×2
- Point.16 最上階角部屋
「青山一丁目」駅徒歩5分。閑静な住宅街に佇む重厚感溢れる低層レジデンス。専有面積144㎡、広々36帖LDK。南西向きでルーフバルコニー付き最上階角住戸
◆交通・ライフインフォメーション
[交通]
①東京メトロ半蔵門線・銀座線・都営大江戸線「青山一丁目」駅 徒歩5分
②東京メトロ千代田線「乃木坂」駅 徒歩6分
③東京メトロ千代田線「赤坂」駅 徒歩13分
[ライフインフォメーション]
①買物施設
まいばすけっと青山一丁目店 徒歩5分
東京ミッドタウン 徒歩11分
赤坂Bizタワー 徒歩15分
ファミリーマート青山外苑東通り店 徒歩4分
Very 新青山 徒歩6分
②医療施設
山王病院 徒歩2分
③教育施設
南青山保育園 徒歩4分
港区立中之町幼稚園 徒歩11分
港区立赤坂小学校 徒歩6分
港区立赤坂中学校 徒歩9分
④その他
明治神宮外苑 徒歩20分
港区立青葉公園 徒歩4分
赤坂郵便局 徒歩6分
三菱UFJ銀行 赤坂見附支店 徒歩6分
◆管理形態・修繕履歴・共用部
[管理形態]
管理会社 大和ライフネクスト(株)
管理形態 全部委託
管理員 日勤
[共用施設・設備]
オートロック
ペット飼育可:10㎏未満、小型犬、猫
※ご案内について
ご興味をもっていただいたマンションと合わせて、比較検討物件のご内覧をお勧めしております。弊社は、2006年の創業以来、都心部を中心に1700戸を超えるリノベーションマンションの引渡し実績があります。仲介に関する知識だけでなく、リノベーションに関しても経験豊富な専門スタッフがお客様の目線に立って、比較ポイントなどをご案内いたします。
物件概要
東京メトロ千代田線「乃木坂」駅 徒歩6分
東京メトロ千代田線「赤坂」駅 徒歩13分
- 情報更新日 2026/03/11
物件の設備状態や改修状況は、必ずご契約前に現場または付帯設備表等でご確認ください
※物件の各種情報及び周辺状況の記載が現状と異なる場合は、現状優先となります
※販売状況は随時更新しておりますが、お客様からの問い合わせ時点で実際の状況と異なる場合がございます
※掲載されている完成予想図は設計段階の図面を基に描き起こしたもので、実際とは異なる場合がございます。なお、予想図に描写されている家財道具は販売対象には含みません。可視性を高めるため壁の一部を透過描写している場合がございます。
マップ
東京都港区赤坂8-6-17
この物件を見ている方におすすめの物件
株式会社LogSuite本店ショールーム
0120-991-657
LogSuiteは、利便性とステイタスを兼ね備えた高級物件を数多く取り扱っています。 天然木を多用した高級リノベーション物件「Logmansion」ブランドも好評展開中。都心で物件を探している方、ぜひお問い合わせください。
MORE DETAIL

