成約済 深沢ハウスD棟 13階

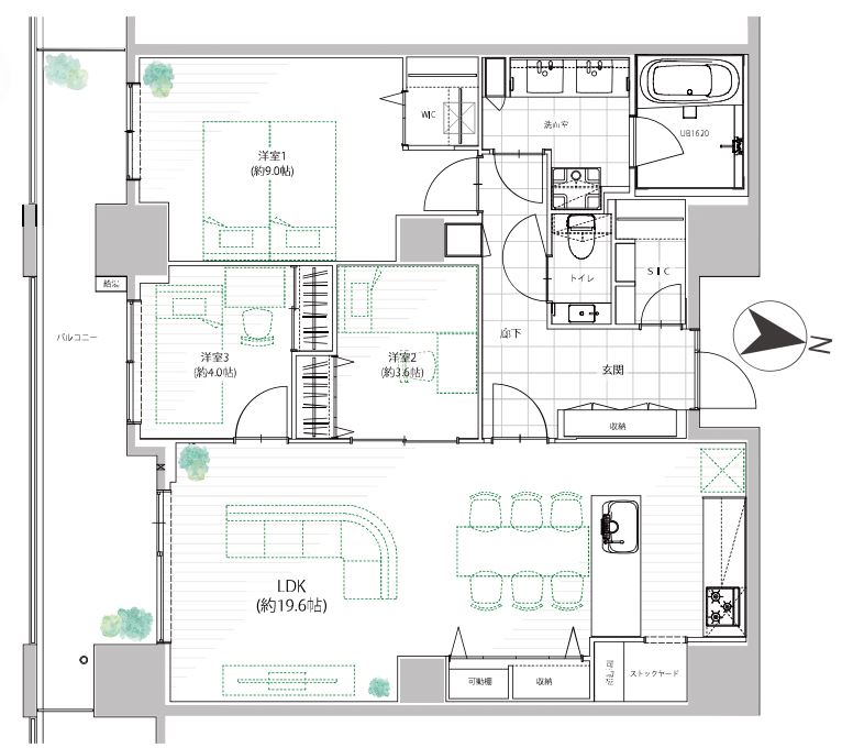
3LDK/90.51m²

駒沢公園に隣接した住環境。水景も愉しめる広大な自然豊かなランドスケープデザイン。ペット2匹まで飼育可能。ワイドスパンバルコニーのある3LDK

◆交通・ライフインフォメーション

[交通]
①東急東横線「都立大学」駅 徒歩18分
②東急田園都市線「駒沢大学」駅 徒歩19分
③東急東横線・大井町線「自由が丘」駅 徒歩28分

[ライフインフォメーション]
①買物施設
ファミリーマート深沢二丁目店 徒歩4分
ローソン駒沢オリンピック公園前店 徒歩9分
西友 深沢目黒通り店 徒歩15分

②医療施設
西田内科医院 徒歩9分

③教育施設
ふかさわミル保育園 徒歩4分
世田谷区立東深沢小学校 徒歩9分
世田谷区立東深沢中学校 徒歩14分

④公園
駒沢オリンピック公園 徒歩2分

◆管理形態・修繕履歴・共用部

[管理形態]
管理会社 (株)長谷工コミュニティ
管理形態 全部委託
管理員 日勤

[共用施設・設備]
モニター付きオートロック・宅配ボックス・コンシェルジュサービス付き
ペット飼育可:1住宅2匹以内
機械式駐車場:月額9,500円~28,000円 ※空有
駐輪場:月額100円~500円 ※要確認

・ゲストルーム・シアタルーム・パーティールーム

※ご案内について

ご興味をもっていただいたマンションと合わせて、比較検討物件のご内覧をお勧めしております。弊社は、2006年の創業以来、都心部を中心に1700戸を超えるリノベーションマンションの引渡し実績があります。仲介に関する知識だけでなく、リノベーションに関しても経験豊富な専門スタッフがお客様の目線に立って、比較ポイントなどをご案内いたします。

物件概要

所在地
東京都世田谷区深沢 2-1-3
交通
東急東横線「都立大学」駅 徒歩18分
東急田園都市線「駒沢大学」駅 徒歩19分
東急東横線・大井町線「自由が丘」駅 徒歩28分
価格
成約済
築年数
2004年06月
間取り
3LDK
所在階/階数
13階/地上19階・地下1階
構造
RC
総戸数
772戸

物件の設備状態や改修状況は、必ずご契約前に現場または付帯設備表等でご確認ください

※物件の各種情報及び周辺状況の記載が現状と異なる場合は、現状優先となります
※販売状況は随時更新しておりますが、お客様からの問い合わせ時点で実際の状況と異なる場合がございます
※掲載されている完成予想図は設計段階の図面を基に描き起こしたもので、実際とは異なる場合がございます。なお、予想図に描写されている家財道具は販売対象には含みません。可視性を高めるため壁の一部を透過描写している場合がございます。

マップ

東京都世田谷区深沢2-1-3

この物件を見ている方におすすめの物件

東急東横線「都立大学」駅 が最寄りの物件

東急田園都市線「駒沢大学」駅 が最寄りの物件

株式会社LogSuite本店ショールーム

i_freecall 0120-991-657

LogSuiteは、利便性とステイタスを兼ね備えた高級物件を数多く取り扱っています。 天然木を多用した高級リノベーション物件「Logmansion」ブランドも好評展開中。都心で物件を探している方、ぜひお問い合わせください。

MORE DETAIL i_arrow_right