成約済 スカイシティ南砂 25階・26階
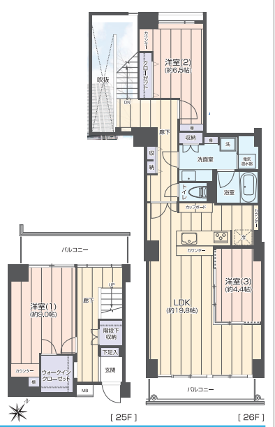
3LDK/106.25m²










































































「南砂町」駅徒歩11分。利便性と緑溢れる住環境を享受。充実の共用施設。スカイツリーと花火も望めるタワーレジデンス。100㎡超のメゾネットタイプ





































◆交通・ライフインフォメーション
[交通]
①東京メトロ東西線「南砂町」駅 徒歩11分
②東京メトロ東西線「東陽町」駅 徒歩22分
③都営新宿線「大島」駅 徒歩28分
[ライフインフォメーション]
①買物施設
ファミリーマート江東北砂四丁目店 徒歩4分
デイリーヤマザキ丸八通り店 徒歩9分
イオンスタイル南砂 徒歩10分
②医療施設
わたなべ内科胃腸科 徒歩10分
③教育施設
江東区立第五砂町幼稚園 徒歩14分
江東区立砂町小学校 徒歩6分
江東区立第三砂町中学校 徒歩10分
④公園
仙台堀川公園 徒歩8分
◆管理形態・修繕履歴・共用部
[管理形態]
管理会社 (株)穴吹ハウジングサービス
管理形態 全部委託
管理員 常駐
[共用施設・設備]
オートロック・宅配ボックス・コンシェルジュサービス付き
トランクルーム:月額5,000円~8,000円 ※要確認
自走式駐車場:月額20,000円~24,000円 ※空有
駐輪場:月額300円~450円 ※要確認
・ラウンジ・ゲストルーム・集会ルーム
※ご案内について
ご興味をもっていただいたマンションと合わせて、比較検討物件のご内覧をお勧めしております。弊社は、2006年の創業以来、都心部を中心に1700戸を超えるリノベーションマンションの引渡し実績があります。仲介に関する知識だけでなく、リノベーションに関しても経験豊富な専門スタッフがお客様の目線に立って、比較ポイントなどをご案内いたします。
物件概要
東京メトロ東西線「東陽町」駅 徒歩22分
都営新宿線「大島」駅 徒歩28分
- 情報更新日 2024/10/31
物件の設備状態や改修状況は、必ずご契約前に現場または付帯設備表等でご確認ください
※物件の各種情報及び周辺状況の記載が現状と異なる場合は、現状優先となります
※販売状況は随時更新しておりますが、お客様からの問い合わせ時点で実際の状況と異なる場合がございます
※掲載されている完成予想図は設計段階の図面を基に描き起こしたもので、実際とは異なる場合がございます。なお、予想図に描写されている家財道具は販売対象には含みません。可視性を高めるため壁の一部を透過描写している場合がございます。
マップ
東京都江東区南砂5-8-13
この物件を見ている方におすすめの物件
株式会社LogSuite本店ショールーム
0120-991-657
LogSuiteは、利便性とステイタスを兼ね備えた高級物件を数多く取り扱っています。 天然木を多用した高級リノベーション物件「Logmansion」ブランドも好評展開中。都心で物件を探している方、ぜひお問い合わせください。
MORE DETAIL


