成約済 ザ・パークハウス代々木上原 5階
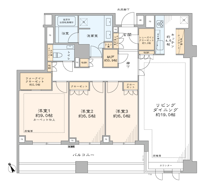
3LDK/111.81m²








































「代々木上原」駅徒歩7分。人気のザ・パークハウスシリーズで住環境良好な専有面積111㎡。眺望良好な全居室南西向き3LDK




















◆交通・ライフインフォメーション
[交通]
①東京メトロ千代田線「代々木上原」駅 徒歩7分
②小田急線「代々木上原」駅 徒歩7分
③小田急線「代々木八幡」駅 徒歩7分
[ライフインフォメーション]
①買物施設
セブンイレブン元代々木町店 徒歩4分
ローソン元代々木町店 徒歩5分
まいばすけっと代々木八幡駅西店 徒歩5分
②医療施設
浜内科クリニック 徒歩3分
③教育施設
なでしこ保育園 徒歩3分
渋谷区立富谷小学校 徒歩6分
渋谷区立上原中学校 徒歩14分
④公園
代々木公園 徒歩11分
◆管理形態・修繕履歴・共用部
[管理形態]
管理会社 三菱地所コミュニティ(株)
管理形態 全部委託
管理員 日勤
[修繕履歴]
修繕積立金総額:87,704,435円(令和5年2月現在)
[共用施設・設備]
オートロック・宅配ボックス・コンシェルジュサービス付き
ペット飼育可:2頭まで
トランクルーム:月額3,300円~5,350円 ※要望があれば用意する
機械式駐車場:月額39,000円 ※空無
駐輪場:月額200円~1,100円 ※空有
※ご案内について
ご興味をもっていただいたマンションと合わせて、比較検討物件のご内覧をお勧めしております。弊社は、2006年の創業以来、都心部を中心に1700戸を超えるリノベーションマンションの引渡し実績があります。仲介に関する知識だけでなく、リノベーションに関しても経験豊富な専門スタッフがお客様の目線に立って、比較ポイントなどをご案内いたします。
物件概要
小田急線「代々木上原」駅 徒歩7分
小田急線「代々木八幡」駅 徒歩7分
- 情報更新日 2023/12/19
物件の設備状態や改修状況は、必ずご契約前に現場または付帯設備表等でご確認ください
※物件の各種情報及び周辺状況の記載が現状と異なる場合は、現状優先となります
※販売状況は随時更新しておりますが、お客様からの問い合わせ時点で実際の状況と異なる場合がございます
※掲載されている完成予想図は設計段階の図面を基に描き起こしたもので、実際とは異なる場合がございます。なお、予想図に描写されている家財道具は販売対象には含みません。可視性を高めるため壁の一部を透過描写している場合がございます。
マップ
東京都渋谷区元代々木町17-13
この物件を見ている方におすすめの物件
株式会社LogSuite本店ショールーム
0120-991-657
LogSuiteは、利便性とステイタスを兼ね備えた高級物件を数多く取り扱っています。 天然木を多用した高級リノベーション物件「Logmansion」ブランドも好評展開中。都心で物件を探している方、ぜひお問い合わせください。
MORE DETAIL

