代々木上原第一マンションズ 3階
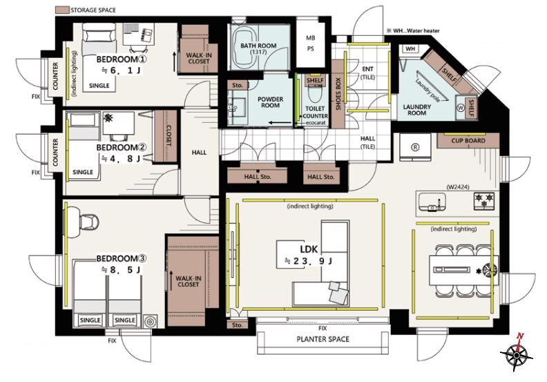
3LDK/111.28m²/19,900万円


















「代々木上原」駅徒歩7分。渋谷区西原で叶える、上質で穏やかな日常。専有面積110㎡超、隣接住戸なしの最上階で陽当たり・眺望良好。無償の専用駐車場付き
◆交通・ライフインフォメーション
[交通]
①東京メトロ千代田線・小田急線「代々木上原」駅 徒歩7分
②京王新線「幡ヶ谷」駅 徒歩9分
③小田急線「代々木八幡」駅 徒歩15分
[ライフインフォメーション]
①買物施設
マルエツ 代々木上原店 徒歩10分
セブンイレブン渋谷西原1丁目店 徒歩5分
スギ薬局 代々木上原駅前店 徒歩7分
②医療施設
ふくだ代々木上原駅前 徒歩6分
③教育施設
西原りとるぱんぷきんずこども園 徒歩1分
城西幼稚園 徒歩6分
渋谷区立西原小学校 徒歩2分
渋谷区立代々木中学校 徒歩9分
④その他
代々木大山公園 徒歩2分
渋谷上原郵便局 徒歩9分
三菱UFJ銀行 代々木上原店 徒歩8分
◆管理形態・修繕履歴・共用部
[管理形態]
管理会社 (株)東急コミュニティー
管理形態 全部委託
管理員 巡回
[共用施設・設備]
オートロック
専用使用権付き駐車場:無償 ※空有
※ご案内について
ご興味をもっていただいたマンションと合わせて、比較検討物件のご内覧をお勧めしております。弊社は、2006年の創業以来、都心部を中心に1700戸を超えるリノベーションマンションの引渡し実績があります。仲介に関する知識だけでなく、リノベーションに関しても経験豊富な専門スタッフがお客様の目線に立って、比較ポイントなどをご案内いたします。
ローンシミュレーター
(税込)
この毎月のローン返済額は、あくまで試算であり実際のご返済額とは異なる場合があります。お借り入れの可否や金利・返済額の諸条件は、金融機関にご確認ください。
※低金利の時代だから極力、資金をお手元に残すことを希望のお客様が増えています。
※お一人でローンを組む場合、ご年収の8から10倍程度が借入可能額の目安です。
※ご夫婦での収入合算やペアローンもそれぞれのご年収に応じてお借入可能です。
※詳細は、営業担当者にお問い合わせください。
物件概要
京王新線「幡ヶ谷」駅 徒歩9分
小田急線「代々木八幡」駅 徒歩15分
- 情報更新日 2026/03/19
- 更新予定日 2026/04/02
物件の設備状態や改修状況は、必ずご契約前に現場または付帯設備表等でご確認ください
※物件の各種情報及び周辺状況の記載が現状と異なる場合は、現状優先となります
※販売状況は随時更新しておりますが、お客様からの問い合わせ時点で実際の状況と異なる場合がございます
※掲載されている完成予想図は設計段階の図面を基に描き起こしたもので、実際とは異なる場合がございます。なお、予想図に描写されている家財道具は販売対象には含みません。可視性を高めるため壁の一部を透過描写している場合がございます。
マップ
東京都渋谷区西原3-43-13
この物件を見ている方におすすめの物件
株式会社LogSuite本店ショールーム
0120-991-657
LogSuiteは、利便性とステイタスを兼ね備えた高級物件を数多く取り扱っています。 天然木を多用した高級リノベーション物件「Logmansion」ブランドも好評展開中。都心で物件を探している方、ぜひお問い合わせください。
MORE DETAIL

