成約済 山王ガーデンハイツ 1階
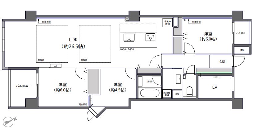
3LDK/90.23m²


















「大森」駅徒歩8分。落ち着きと利便が調和する、山王高台の上質レジデンス。陽当たり良好な3LDK
◆交通・ライフインフォメーション
[交通]
①JR京浜東北線「大森」駅 徒歩9分
②京急線「大森海岸」駅 徒歩18分
③都営浅草線「西馬込」駅 徒歩29分
[ライフインフォメーション]
①買物施設
まいばすけっと大森山王3丁目店 徒歩7分
MEGAドン・キホーテ大森山王店 徒歩7分
セブンイレブン大森駅西口店 徒歩5分
ウエルシアアトレ大森店 徒歩9分
②医療施設
大森山王病院 徒歩9分
③教育施設
山王保育園 徒歩2分
明善幼稚園 徒歩8分
大田区立山王小学校 徒歩11分
大田区立大森第三中学校 徒歩17分
④その他
山王公園 徒歩2分
山王児童館 徒歩11分
大森駅前郵便局 徒歩9分
三井住友銀行 大森支店 徒歩7分
◆管理形態・修繕履歴・共用部
[管理形態]
管理会社 大和ライフネクスト(株)
管理形態 全部委託
管理員 日勤
[共用施設・設備]
オートロック
駐車場:月額20,000円~25,000円 ※空有
駐輪場:月額500円 ※空有
※ご案内について
ご興味をもっていただいたマンションと合わせて、比較検討物件のご内覧をお勧めしております。弊社は、2006年の創業以来、都心部を中心に1700戸を超えるリノベーションマンションの引渡し実績があります。仲介に関する知識だけでなく、リノベーションに関しても経験豊富な専門スタッフがお客様の目線に立って、比較ポイントなどをご案内いたします。
物件概要
京急本線「大森海岸」駅 徒歩18分
都営浅草線「西馬込」駅 徒歩28分
- 情報更新日 2025/12/17
物件の設備状態や改修状況は、必ずご契約前に現場または付帯設備表等でご確認ください
※物件の各種情報及び周辺状況の記載が現状と異なる場合は、現状優先となります
※販売状況は随時更新しておりますが、お客様からの問い合わせ時点で実際の状況と異なる場合がございます
※掲載されている完成予想図は設計段階の図面を基に描き起こしたもので、実際とは異なる場合がございます。なお、予想図に描写されている家財道具は販売対象には含みません。可視性を高めるため壁の一部を透過描写している場合がございます。
マップ
東京都大田区山王3-37-6
この物件を見ている方におすすめの物件
株式会社LogSuite本店ショールーム
0120-991-657
LogSuiteは、利便性とステイタスを兼ね備えた高級物件を数多く取り扱っています。 天然木を多用した高級リノベーション物件「Logmansion」ブランドも好評展開中。都心で物件を探している方、ぜひお問い合わせください。
MORE DETAIL

