秀和大森レジデンス 2階
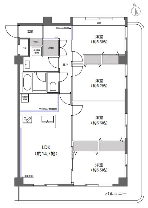
4LDK/84.37m²/7,780万円





















「大森」駅徒歩11分。都心近接、秀和が描く静穏な日常。全居室バルコニーに面して陽当たり良好。南東角部屋4LDK
◆交通・ライフインフォメーション
[交通]
①JR京浜東北線「大森」駅 徒歩11分
②京急本線「立会川」駅 徒歩10分
③京急本線「大森海岸」駅 徒歩15分
[ライフインフォメーション]
①買物施設
そうてつローゼン品川南大井店 徒歩2分
アトレ大森 徒歩13分
セブンイレブン南大井水神店 徒歩4分
ウェルパーク大森貝塚店 徒歩8分
②医療施設
京浜中央クリニック 徒歩8分
③教育施設
品川区立水神保育園 徒歩4分
品川区立浜川幼稚園 徒歩6分
品川区立浜川小学校 徒歩5分
品川区立鈴ヶ森中学校 徒歩7分
④その他
浜川公園 徒歩4分
品川区立水神児童センター 敷地内1階
品川南大井郵便局 徒歩4分
三井住友銀行 大森東口出張所 徒歩12分
◆管理形態・修繕履歴・共用部
[管理形態]
管理会社 朝日管理(株)
管理形態 全部委託
管理員 日勤
[共用施設・設備]
駐車場:※要確認
※ご案内について
ご興味をもっていただいたマンションと合わせて、比較検討物件のご内覧をお勧めしております。弊社は、2006年の創業以来、都心部を中心に1700戸を超えるリノベーションマンションの引渡し実績があります。仲介に関する知識だけでなく、リノベーションに関しても経験豊富な専門スタッフがお客様の目線に立って、比較ポイントなどをご案内いたします。
ローンシミュレーター
(税込)
この毎月のローン返済額は、あくまで試算であり実際のご返済額とは異なる場合があります。お借り入れの可否や金利・返済額の諸条件は、金融機関にご確認ください。
※低金利の時代だから極力、資金をお手元に残すことを希望のお客様が増えています。
※お一人でローンを組む場合、ご年収の8から10倍程度が借入可能額の目安です。
※ご夫婦での収入合算やペアローンもそれぞれのご年収に応じてお借入可能です。
※詳細は、営業担当者にお問い合わせください。
物件概要
京急本線「立会川」駅 徒歩10分
京急本線「大森海岸」駅 徒歩15分
- 情報更新日 2026/01/28
- 更新予定日 2026/02/11
物件の設備状態や改修状況は、必ずご契約前に現場または付帯設備表等でご確認ください
※物件の各種情報及び周辺状況の記載が現状と異なる場合は、現状優先となります
※販売状況は随時更新しておりますが、お客様からの問い合わせ時点で実際の状況と異なる場合がございます
※掲載されている完成予想図は設計段階の図面を基に描き起こしたもので、実際とは異なる場合がございます。なお、予想図に描写されている家財道具は販売対象には含みません。可視性を高めるため壁の一部を透過描写している場合がございます。
マップ
東京都品川区南大井5-13-19
この物件を見ている方におすすめの物件
株式会社LogSuite本店ショールーム
0120-991-657
LogSuiteは、利便性とステイタスを兼ね備えた高級物件を数多く取り扱っています。 天然木を多用した高級リノベーション物件「Logmansion」ブランドも好評展開中。都心で物件を探している方、ぜひお問い合わせください。
MORE DETAIL

