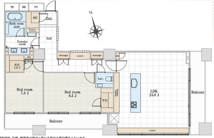
グランスイート虎ノ門 20階
2LDK/111.96m²/62,800万円




























設備概要
- Point.1 最低2年の保証付き
- Point.2 頭金無しでフルローン検討可能
- Point.3 「虎ノ門ヒルズ」駅徒歩1分
- Point.4 「虎ノ門」駅徒歩4分
- Point.5 複数駅・路線利用可能
- Point.6 専有面積:110㎡超
- Point.7 LDK:24帖
- Point.8 アイランドキッチン
- Point.9 LDK:最上天井高2.9m
- Point.10 収納豊富
- Point.11 全室南向きで陽当たり・眺望良好
- Point.12 東京タワーを望むことが可能
- Point.13 2面バルコニー
- Point.14 1620サイズのバスルーム
- Point.15 ツインボウル洗面
- Point.16 角部屋
- Point.17 3LDKへ間取り変更可能
- Point.18 トランクルーム:住戸付設
- Point.19 住戸最上階
- Point.20 コンシェルジュサービス付き
- Point.21 充実した共用施設
「虎ノ門ヒルズ」駅徒歩1分。都心の鼓動と静けさを享受する、虎ノ門邸宅。専有面積111㎡。麻布台ヒルズ・東京タワービューの住戸最上階南東角部屋、プレミアムフロア
◆交通・ライフインフォメーション
[交通]
①東京メトロ日比谷線「虎ノ門ヒルズ」駅 徒歩1分
②東京メトロ銀座線「虎ノ門」駅 徒歩4分
③東京メトロ千代田線「霞ヶ関」駅 徒歩8分
④都営三田線「内幸町」駅 徒歩10分
[ライフインフォメーション]
①買物施設
福島屋 虎ノ門店 徒歩3分
麻布台ヒルズ 徒歩19分
ウィング新橋 徒歩16分
ファミマ!! 虎ノ門ヒルズ店 徒歩2分
トモズ 虎ノ門ヒルズ森タワー店 徒歩3分
②医療施設
虎の門病院 徒歩6分
③教育施設
グローバルキッズ虎ノ門保育園 徒歩11分
霊南坂幼稚園 徒歩15分
港区立御成門学園(小中一貫校) 徒歩12分
④その他
港区立南桜公園 徒歩7分
日比谷公園 徒歩11分
芝公園 徒歩14分
虎ノ門ヒルズ郵便局 徒歩3分
三菱UFJ銀行虎ノ門支店 徒歩5分
⑤娯楽施設・観光名所
東京タワー 徒歩18分
◆管理形態・修繕履歴・共用部
[管理形態]
管理会社 (株)穴吹ハウジングサービス
管理形態 全部委託
管理員 日勤
[共用施設・設備]
オートロック・宅配ボックス・コンシェルジュサービス付き
ペット飼育可:細則有
トランクルーム:住戸付設
駐車場:月額38,000円~40,000円 ※空有
駐輪場:月額150円~200円 ※要確認
・スカイラウンジ・スカイガーデン・フィットネスジム
※ご案内について
ご興味をもっていただいたマンションと合わせて、比較検討物件のご内覧をお勧めしております。弊社は、2006年の創業以来、都心部を中心に1700戸を超えるリノベーションマンションの引渡し実績があります。仲介に関する知識だけでなく、リノベーションに関しても経験豊富な専門スタッフがお客様の目線に立って、比較ポイントなどをご案内いたします。
ローンシミュレーター
(税込)
この毎月のローン返済額は、あくまで試算であり実際のご返済額とは異なる場合があります。お借り入れの可否や金利・返済額の諸条件は、金融機関にご確認ください。
※低金利の時代だから極力、資金をお手元に残すことを希望のお客様が増えています。
※お一人でローンを組む場合、ご年収の8から10倍程度が借入可能額の目安です。
※ご夫婦での収入合算やペアローンもそれぞれのご年収に応じてお借入可能です。
※詳細は、営業担当者にお問い合わせください。
物件概要
東京メトロ銀座線「虎ノ門」駅 徒歩4分
東京メトロ千代田線「霞ヶ関」駅 徒歩8分
都営三田線「内幸町」駅 徒歩10分
組合費 170円/月
インターネット利用料 220円/月
- 情報更新日 2025/11/19
- 更新予定日 2025/12/03
物件の設備状態や改修状況は、必ずご契約前に現場または付帯設備表等でご確認ください
※物件の各種情報及び周辺状況の記載が現状と異なる場合は、現状優先となります
※販売状況は随時更新しておりますが、お客様からの問い合わせ時点で実際の状況と異なる場合がございます
※掲載されている完成予想図は設計段階の図面を基に描き起こしたもので、実際とは異なる場合がございます。なお、予想図に描写されている家財道具は販売対象には含みません。可視性を高めるため壁の一部を透過描写している場合がございます。
マップ
東京都港区虎ノ門1-21-10
株式会社LogSuite表参道ショールーム
0120-991-657
LogSuiteは、利便性とステイタスを兼ね備えた高級物件を数多く取り扱っています。 天然木を多用した高級リノベーション物件「Logmansion」ブランドも好評展開中。都心で物件を探している方、ぜひお問い合わせください。
MORE DETAIL

