SAION SAKURAZAKA 19階
2LDK/107.48m²/64,980万円







からの眺望-1.jpg)










設備概要
- Point.1 最低2年の保証付き
- Point.2 頭金無しでフルローン検討可能
- Point.3 「溜池山王」駅徒歩3分
- Point.4 「赤坂サカス」・「麻布台ヒルズ」・「東京ミッドタウン」・「六本木ヒルズ」・「虎ノ門ヒルズ」徒歩圏内
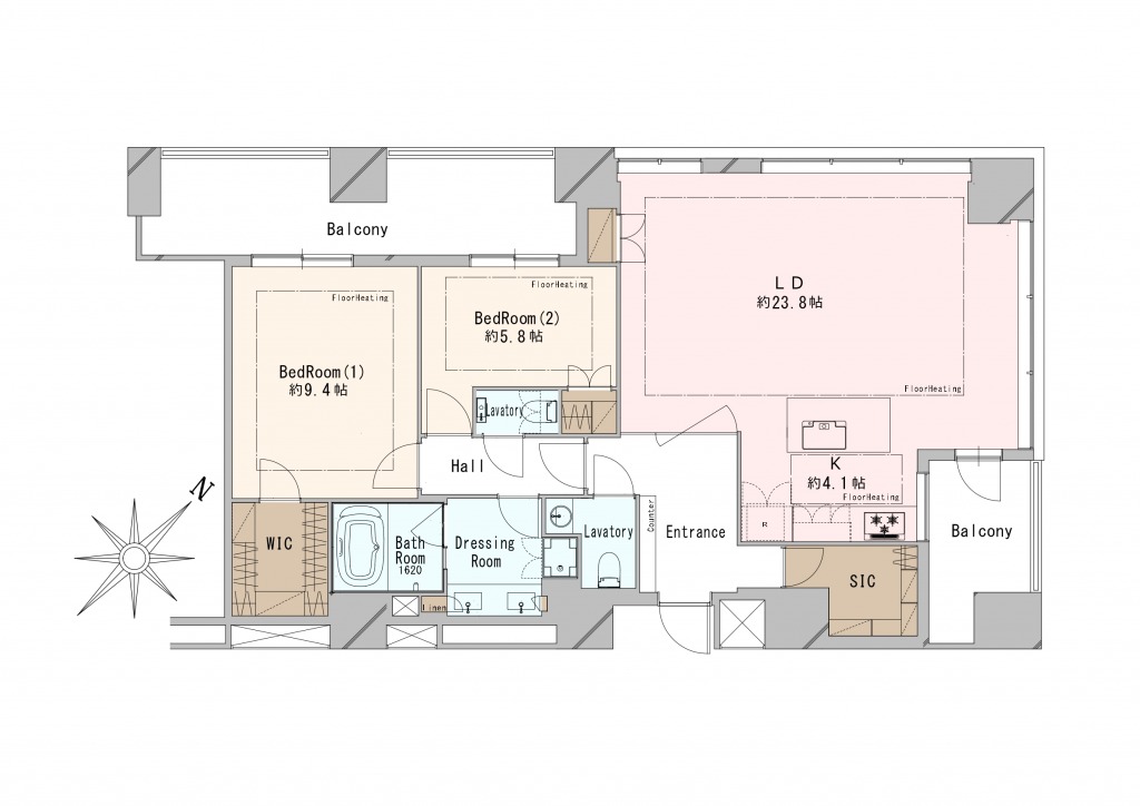
- Point.5 専有面積:100㎡超
- Point.6 LDK:約27帖超
- Point.7 陽当たり良好
- Point.8 全居室床暖房敷設あり
- Point.9 2面バルコニー
- Point.10 1620サイズのバスルーム
- Point.11 ツインボウル洗面
- Point.12 トイレ×2
- Point.13 2LDK角部屋
- Point.14 ホテルライクな内廊下設計
- Point.15 充実した共用施設
- Point.16 英語対応可能なコンシェルジュサービスあり
- Point.17 ペット合計3匹飼育可能
「溜池山王」駅徒歩3分。桜坂に寄り添う、赤坂の静謐な邸宅。24時間コンシェルジュサービス有(英語対応可能)。専有面積100㎡超、27帖超のLDK。ワイドスパンの開放感のある角住戸
◆交通・ライフインフォメーション
[交通]
①東京メトロ南北線・銀座線「溜池山王」駅 徒歩3分
②東京メトロ南北線「六本木一丁目」駅 徒歩5分
③東京メトロ日比谷線「虎ノ門ヒルズ」駅 徒歩11分
[ライフインフォメーション]
①買物施設
成城石井 赤坂アークヒルズ店 徒歩4分
麻布台ヒルズ 徒歩13分
東京ミッドタウン 徒歩19分
ファミリーマート赤坂一丁目店 徒歩5分
ココカラファイン赤坂二丁目店 徒歩6分
②医療施設
虎の門病院 徒歩9分
③教育施設
sakura保育園 徒歩10分
霊南坂幼稚園 徒歩2分
港区立赤坂学園(小中一貫校) 徒歩20分
④その他
氷川公園 徒歩11分
檜町公園 徒歩16分
アーク森ビル内郵便局 徒歩3分
三井住友銀行 赤坂アークヒルズ出張所 徒歩3分
◆管理形態・修繕履歴・共用部
[管理形態]
管理会社 日鉄コミュニティ(株)
管理形態 全部委託
管理員 日勤
[共用施設・設備]
ダブルオートロック・宅配ボックス・コンシェルジュサービス付き
ペット飼育可:体高60㎝以内、体重45㎏以内、合計3匹以内
トランクルーム:月額6,000円 ※要確認
駐車場:月額47,000円~55,000円 ※空有
駐輪場:月額400円~800円 ※空有
・スカイラウンジ・ゲストルーム・屋上庭園
※ご案内について
ご興味をもっていただいたマンションと合わせて、比較検討物件のご内覧をお勧めしております。弊社は、2006年の創業以来、都心部を中心に1700戸を超えるリノベーションマンションの引渡し実績があります。仲介に関する知識だけでなく、リノベーションに関しても経験豊富な専門スタッフがお客様の目線に立って、比較ポイントなどをご案内いたします。
ローンシミュレーター
(税込)
この毎月のローン返済額は、あくまで試算であり実際のご返済額とは異なる場合があります。お借り入れの可否や金利・返済額の諸条件は、金融機関にご確認ください。
※低金利の時代だから極力、資金をお手元に残すことを希望のお客様が増えています。
※お一人でローンを組む場合、ご年収の8から10倍程度が借入可能額の目安です。
※ご夫婦での収入合算やペアローンもそれぞれのご年収に応じてお借入可能です。
※詳細は、営業担当者にお問い合わせください。
物件概要
東京メトロ南北線「六本木一丁目」駅 徒歩5分
東京メトロ日比谷線「虎ノ門ヒルズ」駅 徒歩11分
- 情報更新日 2026/04/01
- 更新予定日 2026/04/15
物件の設備状態や改修状況は、必ずご契約前に現場または付帯設備表等でご確認ください
※物件の各種情報及び周辺状況の記載が現状と異なる場合は、現状優先となります
※販売状況は随時更新しておりますが、お客様からの問い合わせ時点で実際の状況と異なる場合がございます
※掲載されている完成予想図は設計段階の図面を基に描き起こしたもので、実際とは異なる場合がございます。なお、予想図に描写されている家財道具は販売対象には含みません。可視性を高めるため壁の一部を透過描写している場合がございます。
マップ
東京都港区赤坂1-11-12
この物件を見ている方におすすめの物件
株式会社LogSuite本店ショールーム
0120-991-657
LogSuiteは、利便性とステイタスを兼ね備えた高級物件を数多く取り扱っています。 天然木を多用した高級リノベーション物件「Logmansion」ブランドも好評展開中。都心で物件を探している方、ぜひお問い合わせください。
MORE DETAIL

