成約済 カーサフェリス代々木上原 4階
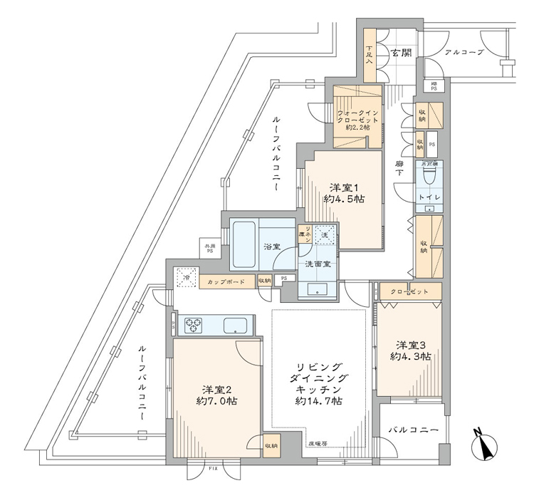
3LDK/81.45m²















「代々木公園」駅徒歩10分。「富ヶ谷」アドレス。2面採光で陽当たり・通風良好。ルーフバルコニー付き3LDK角部屋
◆交通・ライフインフォメーション
[交通]
①東京メトロ千代田線「代々木公園」駅 徒歩10分
②小田急線「代々木八幡」駅 徒歩10分
③京王井の頭「駒場東大前」駅 徒歩12分
[ライフインフォメーション]
①買物施設
肉のハナマサ 富ヶ谷店 徒歩9分
セブンイレブン渋谷富ヶ谷2丁目店 徒歩2分
ココカラファイン代々木八幡店 徒歩13分
②医療施設
近藤医院 徒歩4分
③教育施設
富ヶ谷保育園 徒歩4分
村松幼稚園 徒歩8分
渋谷区立富谷小学校 徒歩11分
渋谷区立上原中学校 徒歩16分
④その他
代々木公園 徒歩15分
富ヶ谷公園 徒歩2分
駒場児童館 徒歩16分
渋谷富ヶ谷二郵便局 徒歩2分
三井住友銀行 代々木八幡出張所 徒歩12分
◆管理形態・修繕履歴・共用部
[管理形態]
管理会社 大和ライフネクスト
管理形態 全部委託
管理員 日勤
[修繕履歴]
2015年 大規模修繕工事済
[共用施設・設備]
オートロック・宅配ボックス
ペット飼育可:細則有
トランクルーム:無償 ※空有
駐車場:月額38,000円 ※空無
駐輪場:月額300円 ※空有
※ご案内について
ご興味をもっていただいたマンションと合わせて、比較検討物件のご内覧をお勧めしております。弊社は、2006年の創業以来、都心部を中心に1700戸を超えるリノベーションマンションの引渡し実績があります。仲介に関する知識だけでなく、リノベーションに関しても経験豊富な専門スタッフがお客様の目線に立って、比較ポイントなどをご案内いたします。
物件概要
小田急線「代々木八幡」駅 徒歩10分
京王井の頭線「駒場東大前」駅 徒歩12分
- 情報更新日 2025/07/02
物件の設備状態や改修状況は、必ずご契約前に現場または付帯設備表等でご確認ください
※物件の各種情報及び周辺状況の記載が現状と異なる場合は、現状優先となります
※販売状況は随時更新しておりますが、お客様からの問い合わせ時点で実際の状況と異なる場合がございます
※掲載されている完成予想図は設計段階の図面を基に描き起こしたもので、実際とは異なる場合がございます。なお、予想図に描写されている家財道具は販売対象には含みません。可視性を高めるため壁の一部を透過描写している場合がございます。
マップ
東京都渋谷区富ヶ谷2-12-10
この物件を見ている方におすすめの物件
株式会社LogSuite本店ショールーム
0120-991-657
LogSuiteは、利便性とステイタスを兼ね備えた高級物件を数多く取り扱っています。 天然木を多用した高級リノベーション物件「Logmansion」ブランドも好評展開中。都心で物件を探している方、ぜひお問い合わせください。
MORE DETAIL

