成約済 It's東京フォーサイトスクエア 4階
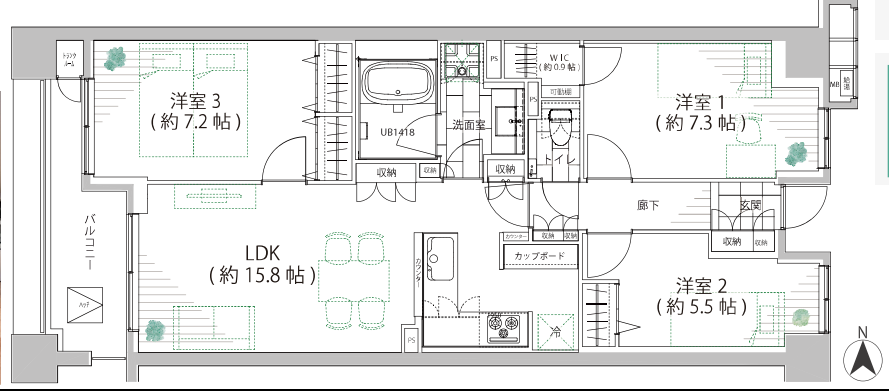
3LDK/78.42m²


























「大久保」駅徒歩8分、「新宿」駅徒歩圏内、4駅3路線利用可能。高台の陽当たり・眺望良好な3LDK
◆交通・ライフインフォメーション
[交通]
①JR中央総武線「大久保」駅 徒歩8分
②JR中央総武線・都営大江戸線「東中野」駅 徒歩10分
③東京メトロ丸ノ内線「西新宿」駅 徒歩12分
[ライフインフォメーション]
①買物施設
オリンピック北新宿店 徒歩3分
ルミネ新宿 徒歩26分
セブンイレブン東中野末広橋店 徒歩4分
薬 スギ薬局 北新宿3丁目店 徒歩5分
②医療施設
JCHO 東京山手メディカルセンター 徒歩17分
③教育施設
カメリアキッズ東中野園 徒歩4分
新宿区立淀橋第四幼稚園 徒歩7分
新宿区立柏木小学校 徒歩3分
新宿区立西新宿中学校 徒歩13分
④その他
新宿区立北新宿公園 徒歩3分
北新宿第一児童館 徒歩7分
北新宿三郵便局 徒歩3分
みずほ銀行ATM(大久保出張所) 徒歩13分
◆管理形態・修繕履歴・共用部
[管理形態]
管理会社 (株)長谷工コミュニティ
管理形態 全部委託
管理員 日勤
[共用施設・設備]
オートロック・宅配ボックス・コンシェルジュサービス付き
ペット飼育可:1住戸につき2匹まで、体高40㎝以内
トランクルーム:住戸付設
駐車場:月額23,100円~36,300円 ※空有
駐輪場:月額200円~300円 ※空有
・ピアノラウンジ・パーティールーム・ワークルーム
※ご案内について
ご興味をもっていただいたマンションと合わせて、比較検討物件のご内覧をお勧めしております。弊社は、2006年の創業以来、都心部を中心に1700戸を超えるリノベーションマンションの引渡し実績があります。仲介に関する知識だけでなく、リノベーションに関しても経験豊富な専門スタッフがお客様の目線に立って、比較ポイントなどをご案内いたします。
物件概要
JR中央総武線・都営大江戸線「東中野」駅 徒歩10分
東京メトロ丸ノ内線「西新宿」駅 徒歩12分
- 情報更新日 2025/05/09
物件の設備状態や改修状況は、必ずご契約前に現場または付帯設備表等でご確認ください
※物件の各種情報及び周辺状況の記載が現状と異なる場合は、現状優先となります
※販売状況は随時更新しておりますが、お客様からの問い合わせ時点で実際の状況と異なる場合がございます
※掲載されている完成予想図は設計段階の図面を基に描き起こしたもので、実際とは異なる場合がございます。なお、予想図に描写されている家財道具は販売対象には含みません。可視性を高めるため壁の一部を透過描写している場合がございます。
マップ
東京都新宿区北新宿2-6-29
この物件を見ている方におすすめの物件
株式会社LogSuite本店ショールーム
0120-991-657
LogSuiteは、利便性とステイタスを兼ね備えた高級物件を数多く取り扱っています。 天然木を多用した高級リノベーション物件「Logmansion」ブランドも好評展開中。都心で物件を探している方、ぜひお問い合わせください。
MORE DETAIL

