成約済 アップルタワー東京キャナルコート 35階
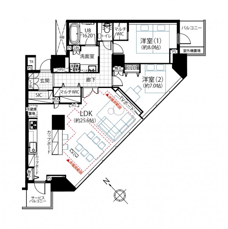
2LDK/97.88m²














設備概要
- Point.1 最低2年の保証付き
- Point.2 頭金無しでフルローン検討可能
- Point.3 新規フルリノベーション
- Point.4 「辰巳」駅徒歩7分
- Point.5 LDK:約25帖超
- Point.6 二面バルコニー
- Point.7 南向き角部屋
- Point.8 ダイレクトウインドウ
- Point.9 東京湾ビュー
- Point.10 花火も望める
- Point.11 1620サイズの浴室
- Point.12 自宅浴室で天然温泉を楽しめる
- Point.13 収納豊富
- Point.14 充実のコンシェルジュサービス付き
- Point.15 各階ゴミステーションあり(粗大ごみ除く)
- Point.16 24時間有人管理(夜間防災センター対応)
- Point.17 充実の共用施設
- Point.18 2023年大規模修繕工事実施
「辰巳」駅徒歩7分。都心で希少な全邸天然温泉付き。25帖超のLDK、ダイレクトウインドウで陽当たり・眺望良好な南向き角住戸
◆交通・ライフインフォメーション
[交通]
①東京メトロ有楽町線「辰巳」駅 徒歩7分
②りんかい線「東雲」駅 徒歩11分
③東京メトロ有楽町線・ゆりかもめ線「豊洲」駅 徒歩18分
[ライフインフォメーション]
①買物施設
イオン東雲店 徒歩6分
東武ストア 東雲店 徒歩8分
有明ガーデン 徒歩18分
アーバンドックららぽーと豊洲 徒歩23分
ファミリーマート江東東雲一丁目店 徒歩1分
くすりの福太郎東雲店 徒歩1分
②医療施設
しののめ内科クリニック 徒歩6分
③教育施設
YMCA キャナルコート保育園 徒歩2分
辰巳幼稚園 徒歩11分
江東区立第二辰巳小学校 徒歩11分
江東区立辰巳中学校 徒歩11分
④その他
東雲水辺公園 徒歩3分
辰巳の森海浜公園 徒歩17分
江東区辰巳児童館 徒歩10分
イオン東雲内郵便局 徒歩9分
三菱UFJ銀行 ATMコーナーイオン東雲SC 徒歩6分
⑤娯楽施設・観光名所
葛西臨海水族園 車で14分
東京ディズニーリゾート 車で26分
◆管理形態・修繕履歴・共用部
[管理形態]
管理会社 アパコミュニティ(株)
管理形態 全部委託
管理員 日勤
[修繕履歴]
2023年 7月 大規模修繕工事
[共用施設・設備]
オートロック・宅配ボックス・コンシェルジュサービス付き
ペット飼育可:細則有
トランクルーム:住戸付設
駐車場:月額9,000円~26,000円 ※空無
駐輪場:100円~300円 ※空有
天然温泉:月額3,000円
・スカイラウンジ・ゲストルーム・シアタールーム
・キッズルーム・ライブラリーコーナー・トリミングルーム
※ご案内について
ご興味をもっていただいたマンションと合わせて、比較検討物件のご内覧をお勧めしております。弊社は、2006年の創業以来、都心部を中心に1700戸を超えるリノベーションマンションの引渡し実績があります。仲介に関する知識だけでなく、リノベーションに関しても経験豊富な専門スタッフがお客様の目線に立って、比較ポイントなどをご案内いたします。
物件概要
りんかい線「東雲」駅 徒歩11分
東京メトロ有楽町線・ゆりかもめ線「豊洲」駅 徒歩18分
- 情報更新日 2025/09/01
物件の設備状態や改修状況は、必ずご契約前に現場または付帯設備表等でご確認ください
※物件の各種情報及び周辺状況の記載が現状と異なる場合は、現状優先となります
※販売状況は随時更新しておりますが、お客様からの問い合わせ時点で実際の状況と異なる場合がございます
※掲載されている完成予想図は設計段階の図面を基に描き起こしたもので、実際とは異なる場合がございます。なお、予想図に描写されている家財道具は販売対象には含みません。可視性を高めるため壁の一部を透過描写している場合がございます。
マップ
東京都江東区東雲1-9-41
この物件を見ている方におすすめの物件
株式会社LogSuite本店ショールーム
0120-991-657
LogSuiteは、利便性とステイタスを兼ね備えた高級物件を数多く取り扱っています。 天然木を多用した高級リノベーション物件「Logmansion」ブランドも好評展開中。都心で物件を探している方、ぜひお問い合わせください。
MORE DETAIL

