成約済 二子玉川ライズタワー&レジデンスタワーウエスト 20階
3LDK/92.04m²
































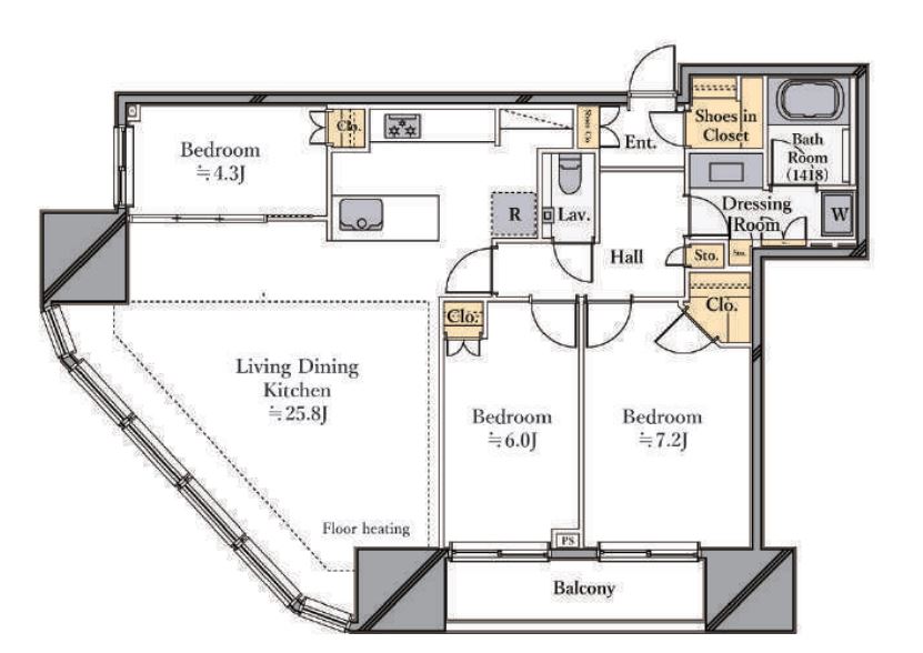
設備概要
- Point.1 最低2年の保証付き
- Point.2 頭金無しでフルローン検討可能
- Point.3 「二子玉川」駅徒歩6分
- Point.4 駅より「リポンストリート」で直結アプローチ
- Point.5 LDK:約25帖超
- Point.6 開放感のある眺望
- Point.7 富士山や花火大会が望める(天候による)
- Point.8 二重床・二重天井
- Point.9 車寄せ・サブエントランスあり
- Point.10 充実した共用施設
- Point.11 24時間有人管理システム
- Point.12 コンシェルジュサービス付き
- Point.13 洗車スペース有
- Point.14 各階ゴミ置場有り
- Point.15 免震構造
「二子玉川」駅徒歩6分。充実した共用施設。富士山や花火大会の絶景が望めるパノラマウインドウの南西向き3LDK
















◆交通・ライフインフォメーション
[交通]
①東急田園都市線・大井町線「二子玉川」駅 徒歩6分
②東急大井町線「上野毛」駅 徒歩15分
③東急田園都市線・大井町線「二子新地」駅 徒歩16分
[ライフインフォメーション]
①買物施設
二子玉川ライズ 徒歩3分
ファミマ!! 二子玉川店 徒歩3分
八百五商店 徒歩5分
東急ストア二子玉川ライズ店 徒歩5分
②医療施設
二子玉川ライズひろ内科クリニック 徒歩5分
③教育施設
鈴蘭幼稚園 徒歩13分
世田谷区立二子玉川小学校 徒歩12分
世田谷区立瀬田中学校 徒歩15分
④公園
二子玉川公園 徒歩4分
◆管理形態・修繕履歴・共用部
[管理形態]
管理会社 (株)東急コミュニティー
管理形態 全部委託
管理員 日勤
[共用施設・設備]
トリプルキーカードダブルオートロック・宅配ボックス・コンシェルジュサービス付き
ペット飼育可:細則有
トランクルーム:月額1,400円~2,400円 ※空無
駐車場:月額18,000円~4,5000円 ※空無
駐輪場:月額200円~500円 ※要確認
・ゲストルーム(室料1泊3,500円 + リネン代1名1,000円)・ミーティングルーム(1時間300円)
・集会室(1時間500円)・音響室(1時間500円)・スカイラウンジ(1時間1,000円)
・キッズルーム(無償)・ビュースクエア(無償)・フィットネスルーム(無償)
・ラウンジ・サロン・サンクンガーデン(無償)
・来客用駐車場(1時間100円)・機械式駐車場:1時間50円 ・1時間300円
※ご案内について
ご興味をもっていただいたマンションと合わせて、比較検討物件のご内覧をお勧めしております。弊社は、2006年の創業以来、都心部を中心に1700戸を超えるリノベーションマンションの引渡し実績があります。仲介に関する知識だけでなく、リノベーションに関しても経験豊富な専門スタッフがお客様の目線に立って、比較ポイントなどをご案内いたします。
物件概要
東急大井町線「上野毛」駅 徒歩15分
東急田園都市線・大井町線「二子新地」駅 徒歩16分
- 情報更新日 2025/08/21
物件の設備状態や改修状況は、必ずご契約前に現場または付帯設備表等でご確認ください
※物件の各種情報及び周辺状況の記載が現状と異なる場合は、現状優先となります
※販売状況は随時更新しておりますが、お客様からの問い合わせ時点で実際の状況と異なる場合がございます
※掲載されている完成予想図は設計段階の図面を基に描き起こしたもので、実際とは異なる場合がございます。なお、予想図に描写されている家財道具は販売対象には含みません。可視性を高めるため壁の一部を透過描写している場合がございます。
マップ
東京都世田谷区玉川1-15-1
この物件を見ている方におすすめの物件
株式会社LogSuite本店ショールーム
0120-991-657
LogSuiteは、利便性とステイタスを兼ね備えた高級物件を数多く取り扱っています。 天然木を多用した高級リノベーション物件「Logmansion」ブランドも好評展開中。都心で物件を探している方、ぜひお問い合わせください。
MORE DETAIL

