成約済 プラザ元加賀G棟 7階
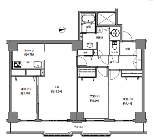
3LDK/85.84m²


















































「清澄白河」駅徒歩7分。子育てファミリーにうれしい充実の住環境。全居室に採光有りの3LDK

























◆交通・ライフインフォメーション
[交通」
①東京メトロ半蔵門線「清澄白河」駅 徒歩7分
②都営新宿線「菊川」駅 徒歩9分
③都営大江戸線「清澄白河」駅 徒歩10分
[ライフインフォメーション]
①買物施設
ファミリーマート江東白河四丁目店 徒歩1分
セブンイレブン江東白川3丁目店 徒歩2分
マルエツ清澄白河店 徒歩1分
②医療施設
清澄白河ファミリークリニック 徒歩2分
③教育施設
元加賀幼稚園 敷地内
江東区立元加賀小学校 徒歩2分
江東区立深川第一中学校 徒歩6分
④公園
元加賀公園 徒歩4分
◆管理形態・修繕履歴・共用部
[管理形態]
管理会社 日鉄コミュニティ
管理形態 全部委託
管理員 日勤
[共用施設・設備]
駐車場:月額28,000円 ※空無
駐輪場:年額2,000円 ※空有
※ご案内について
ご興味をもっていただいたマンションと合わせて、比較検討物件のご内覧をお勧めしております。弊社は、2006年の創業以来、都心部を中心に1700戸を超えるリノベーションマンションの引渡し実績があります。仲介に関する知識だけでなく、リノベーションに関しても経験豊富な専門スタッフがお客様の目線に立って、比較ポイントなどをご案内いたします。
物件概要
都営新宿線「菊川」駅 徒歩9分
都営大江戸線「清澄白河」駅 徒歩10分
- 情報更新日 2024/09/04
物件の設備状態や改修状況は、必ずご契約前に現場または付帯設備表等でご確認ください
※物件の各種情報及び周辺状況の記載が現状と異なる場合は、現状優先となります
※販売状況は随時更新しておりますが、お客様からの問い合わせ時点で実際の状況と異なる場合がございます
※掲載されている完成予想図は設計段階の図面を基に描き起こしたもので、実際とは異なる場合がございます。なお、予想図に描写されている家財道具は販売対象には含みません。可視性を高めるため壁の一部を透過描写している場合がございます。
マップ
東京都江東区白河4-9-16
この物件を見ている方におすすめの物件
株式会社LogSuite本店ショールーム
0120-991-657
LogSuiteは、利便性とステイタスを兼ね備えた高級物件を数多く取り扱っています。 天然木を多用した高級リノベーション物件「Logmansion」ブランドも好評展開中。都心で物件を探している方、ぜひお問い合わせください。
MORE DETAIL

