成約済 ライオンズステージ下高井戸 1階
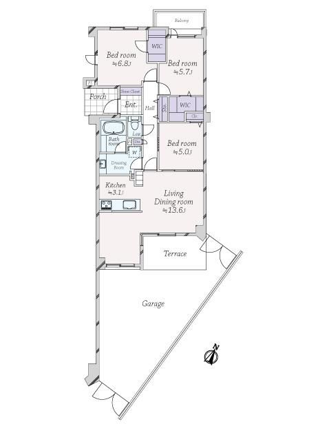
3LDK/80.76m²


















































緑豊かな住環境。ドッグランも可能な広々40㎡の専用庭付きの3LDK

























◆交通・ライフインフォメーション
[交通]
①京王線「上北沢」駅 徒歩8分
②京王線「桜上水」駅 徒歩13分
③京王井の頭線「浜田山」駅 徒歩18分
[ライフインフォメーション]
①買物施設
セブンイレブン下高井戸5丁目店 徒歩3分
ファミリーマート上北沢四丁目店 徒歩13分
まいばすけっと下高井戸5丁目店 徒歩2分
②医療施設
曾根田医院 徒歩9分
③教育施設
世田谷区立上北沢保育園 徒歩17分
杉並区立高井戸第三小学校 徒歩10分
杉並区立向陽中学校 徒歩15分
④公園
塚山公園 徒歩4分
◆管理形態・修繕履歴・共用部
[管理形態]
管理会社 (株)大京アステージ
管理形態 全部委託
管理員 日勤
[修繕履歴]
2021年 11月 給水方式変更工事
2014年 6月 屋上防水改修工事
2014年 6月 大規模修繕工事
[共用施設・設備]
オートロック・宅配ボックス
ペット飼育可:細則有
駐車場:19,800円~22,500円 ※空無
・パティオ・集会所
※ご案内について
ご興味をもっていただいたマンションと合わせて、比較検討物件のご内覧をお勧めしております。弊社は、2006年の創業以来、都心部を中心に1700戸を超えるリノベーションマンションの引渡し実績があります。仲介に関する知識だけでなく、リノベーションに関しても経験豊富な専門スタッフがお客様の目線に立って、比較ポイントなどをご案内いたします。
物件概要
京王線「桜上水」駅 徒歩13分
京王井の頭線「浜田山」駅 徒歩18分
- 情報更新日 2023/10/04
物件の設備状態や改修状況は、必ずご契約前に現場または付帯設備表等でご確認ください
※物件の各種情報及び周辺状況の記載が現状と異なる場合は、現状優先となります
※販売状況は随時更新しておりますが、お客様からの問い合わせ時点で実際の状況と異なる場合がございます
※掲載されている完成予想図は設計段階の図面を基に描き起こしたもので、実際とは異なる場合がございます。なお、予想図に描写されている家財道具は販売対象には含みません。可視性を高めるため壁の一部を透過描写している場合がございます。
マップ
東京都杉並区下高井戸4-31-7
この物件を見ている方におすすめの物件
株式会社LogSuite本店ショールーム
0120-991-657
LogSuiteは、利便性とステイタスを兼ね備えた高級物件を数多く取り扱っています。 天然木を多用した高級リノベーション物件「Logmansion」ブランドも好評展開中。都心で物件を探している方、ぜひお問い合わせください。
MORE DETAIL

