成約済 ザ・テラス代々木上原 4階
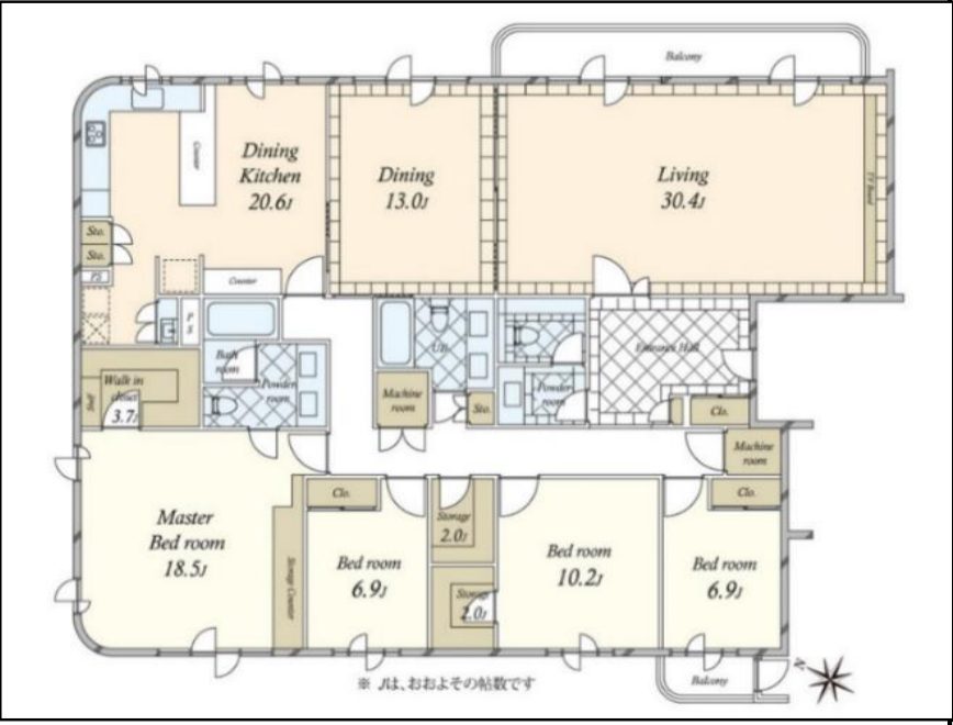
4LDK+S/245.18m²






















































































「代々木上原」駅徒歩5分。専有面積245㎡、64帖の大型LDK。ホテルライクなラグジュアリーペントハウス











































◆交通・ライフインフォメーション
[交通]
①小田急小田原線・東京メトロ千代田線「代々木上原」駅 徒歩5分
②小田急小田原線「代々木八幡」駅 徒歩11分
③小田急小田原線「東北沢」駅 徒歩14分
[ライフインフォメーション]
①買物施設
セブンイレブン代々木上原駅前店 徒歩3分
ファミリーマート代々木上原駅前店 徒歩4分
Odakyu OX代々木上原店 徒歩5分
②医療施設
あおい内科 徒歩4分
③教育施設
グローバルキッズ代々木上原園 徒歩3分
渋谷区立西原小学校 徒歩4分
渋谷区立代々木中学校 徒歩8分
④公園
渋谷区立代々木大山公園 徒歩7分
◆管理形態・修繕履歴・共用部
[管理形態]
管理会社 日本ハウズイング(株)
管理形態 全部委託
管理員 日勤
[修繕履歴]
2017年 6月 共用部改修工事
[共用施設・設備]
モニター付きオートロック・宅配ボックス
ペット飼育可:細則有
専用使用権付きトランクルーム:月額700円 ※空有
平置き駐車場:月額23,000円~27,000円 ※空有
※ご案内について
ご興味をもっていただいたマンションと合わせて、比較検討物件のご内覧をお勧めしております。弊社は、2006年の創業以来、都心部を中心に1700戸を超えるリノベーションマンションの引渡し実績があります。仲介に関する知識だけでなく、リノベーションに関しても経験豊富な専門スタッフがお客様の目線に立って、比較ポイントなどをご案内いたします。
物件概要
小田急小田原線「代々木八幡」駅 徒歩11分
小田急小田原線「東北沢」駅 徒歩14分
- 情報更新日 2024/03/06
物件の設備状態や改修状況は、必ずご契約前に現場または付帯設備表等でご確認ください
※物件の各種情報及び周辺状況の記載が現状と異なる場合は、現状優先となります
※販売状況は随時更新しておりますが、お客様からの問い合わせ時点で実際の状況と異なる場合がございます
※掲載されている完成予想図は設計段階の図面を基に描き起こしたもので、実際とは異なる場合がございます。なお、予想図に描写されている家財道具は販売対象には含みません。可視性を高めるため壁の一部を透過描写している場合がございます。
マップ
東京都渋谷区西原3-37-3
この物件を見ている方におすすめの物件
株式会社LogSuite本店ショールーム
0120-991-657
LogSuiteは、利便性とステイタスを兼ね備えた高級物件を数多く取り扱っています。 天然木を多用した高級リノベーション物件「Logmansion」ブランドも好評展開中。都心で物件を探している方、ぜひお問い合わせください。
MORE DETAIL

