成約済 プラウド中野坂上 5階
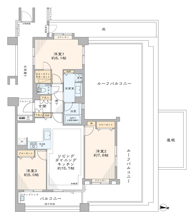
3LDK/80.04m²


































人気のプラウドシリーズ。広々とした専用ルーフバルコニー付き。3LDKペントハウス

















◆交通・ライフインフォメーション
[交通]
①東京メトロ丸ノ内線・都営大江戸線「中野坂上」駅 徒歩9分
②JR中央総武線・都営大江戸線「東中野」駅 徒歩10分
③JR山手線「大久保」駅 徒歩12分
[ライフインフォメーション]
①買物施設
ファミリーマート中野中央一丁目店 徒歩6分
セブンイレブン東中野1丁目店 徒歩6分
マルエツプチ中野中央店 徒歩2分
②医療施設
セイメイ内科 徒歩3分
③教育施設
太陽の子 中野中央保育園 徒歩2分
中野区立塔山小学校 徒歩5分
中野区立中野東中学校 徒歩7分
④公園
中野区立小淀公園 徒歩2分
◆管理形態・修繕履歴・共用部
[管理形態]
管理会社 野村不動産パートナーズ(株)
管理形態 全部委託
管理員 日勤
[修繕履歴]
修繕積立金総額:57,123,932円(令和4年8月現在)
[共用施設・設備]
オートロック・宅配ボックス
ペット飼育可能:体高30㎝以内、犬猫2匹まで
平置き駐車場:月額30,000円 ※空有
ラック式駐輪場:無償 ※空有
※ご案内について
ご興味をもっていただいたマンションと合わせて、比較検討物件のご内覧をお勧めしております。弊社は、2006年の創業以来、都心部を中心に1700戸を超えるリノベーションマンションの引渡し実績があります。仲介に関する知識だけでなく、リノベーションに関しても経験豊富な専門スタッフがお客様の目線に立って、比較ポイントなどをご案内いたします。
物件概要
JR中央総武線・都営大江戸線「東中野」駅 徒歩10分
JR山手線「大久保」駅 徒歩12分
- 情報更新日 2023/10/04
物件の設備状態や改修状況は、必ずご契約前に現場または付帯設備表等でご確認ください
※物件の各種情報及び周辺状況の記載が現状と異なる場合は、現状優先となります
※販売状況は随時更新しておりますが、お客様からの問い合わせ時点で実際の状況と異なる場合がございます
※掲載されている完成予想図は設計段階の図面を基に描き起こしたもので、実際とは異なる場合がございます。なお、予想図に描写されている家財道具は販売対象には含みません。可視性を高めるため壁の一部を透過描写している場合がございます。
マップ
東京都中野区中央1-15-2
この物件を見ている方におすすめの物件
株式会社LogSuite本店ショールーム
0120-991-657
LogSuiteは、利便性とステイタスを兼ね備えた高級物件を数多く取り扱っています。 天然木を多用した高級リノベーション物件「Logmansion」ブランドも好評展開中。都心で物件を探している方、ぜひお問い合わせください。
MORE DETAIL

