成約済 碑文谷ヒルズサレジオ通り 1階
3LDK/82.14m²



















設備概要
2駅1路線利用可。南東向きでテラス付きの3LDK
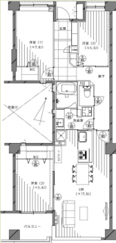
碑文谷ヒルズサレジオ通り 1階に位置する当物件は、専有面積82.14m² 、3LDKの居室と7.19m² のテラスを備えたリノベーション物件です。東急東横線「学芸大学」駅まで徒歩15分の立地にあるほか、同線「都立大学」駅の2駅1路線の利用が可能です。









◆ロケーション・環境
東急東横線「学芸大学」駅より徒歩15分、同線「都立大学」駅より徒歩15分で2駅利用可能です。乗り換えなしで約ターミナル駅の「渋谷」駅へは7分、「池袋」駅へは約21分で乗り換えはありますが、「新宿」駅へは約19分で移動ができ都心アクセス良好です。「横浜」駅や「みんなとみらい」駅、「元町・中華街」駅などの観光スポットにも直通で行けるので、都心アクセスだけでなく、休日のお出掛けにも便利です。
「学芸大学」駅前は、その名の通り学生街で商店街が7つもあり、イベントなどもよく行われ飲食店や商店が立ち並び、賑わいのある都心ながら親しみやすい街並みです。チェーン店からおしゃれなカフェまで、バリエーションも豊富でグルメが愉しめます。駅前には、スーパーの「東急ストア」、「まいばすけっと」があり、遅くまで営業しているので、お買い物にも困りません。オーガニックスーパーの「FOOD&COMPANY」もあります。近隣には、大型公園の「碑文谷公園」や銭湯の「千代の湯」、「鷹番の湯」などの癒しスポットもあります。
本物件近くには、サレジオ教会が至近で、敷地内には目黒サレジオ幼稚園もあります。また「碑文谷小学校」、「第七中学校」、「すずめのお宿緑地公園」、「イオンスタイル」「まいばすけっと」、「爽玄会碑文谷病院」などもあり、生活環境も整っています。
◆概要・管理・設備
1997年1月築、地下1階地上5階建4階部分、総戸数80戸の中規模マンションです。住民同士が顔見知りになりやすい規模感で人気があります。顔見知りといってもそれなりの住戸数があるので、ある程度のプライバシーが保てるのも魅力です。清水建設施工、野村不動産都市開発分譲で、大和ライフネクストが管理をしています。大手の分譲の場合、建物に瑕疵があった場合、手厚い保証が受けられるケースがあるので、信頼性の高さがポイントになります。
・オートロックでセキュリティー面が配慮されています。
・宅配ボックスもあり、対面せず不在時にも荷物が受け取れます。
・駐車場:23,000~34,000円/月
・駐輪場:1,200~3,600円/月
・バイク置き場:2,000~3,000円/月
(最新の空き状況をお調べしますのでお問い合わせくださいませ。)
※ご案内について
ご興味をもっていただいたマンションと合わせて、比較検討物件のご内覧をお勧めしております。弊社は、2006年の創業以来、都心部を中心に1700戸を超えるリノベーションマンションの引渡し実績があります。仲介に関する知識だけでなく、リノベーションに関しても経験豊富な専門スタッフがお客様の目線に立って、比較ポイントなどをご案内いたします。
物件概要
東急東横線「都立大学」駅 徒歩15分
- 情報更新日 2023/05/23
物件の設備状態や改修状況は、必ずご契約前に現場または付帯設備表等でご確認ください
※物件の各種情報及び周辺状況の記載が現状と異なる場合は、現状優先となります
※販売状況は随時更新しておりますが、お客様からの問い合わせ時点で実際の状況と異なる場合がございます
※掲載されている完成予想図は設計段階の図面を基に描き起こしたもので、実際とは異なる場合がございます。なお、予想図に描写されている家財道具は販売対象には含みません。可視性を高めるため壁の一部を透過描写している場合がございます。
マップ
東京都目黒区碑文谷1-26-18
この物件を見ている方におすすめの物件
株式会社LogSuite表参道ショールーム
0120-991-657
LogSuiteは、利便性とステイタスを兼ね備えた高級物件を数多く取り扱っています。 天然木を多用した高級リノベーション物件「Logmansion」ブランドも好評展開中。都心で物件を探している方、ぜひお問い合わせください。
MORE DETAIL

