成約済 メゾンドール北参道 6階
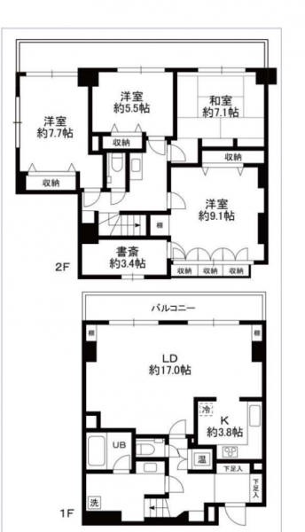
4LDK+S/127.98m²






























「北参道」駅徒歩3分の好立地。個性的な内装が目を惹く南東角部屋120平米超のメゾネット物件
4つの居室とサービスルームを備えた広々メゾネット物件。和室もあります。建具や壁紙もちょうどよいアクセントが利いていて、それぞれのお部屋に個性があります。周囲に高い建物がないので眺望も良好です。















◆交通・ライフインフォメーション
[交通]
①東京メトロ副都心線「北参道」駅 徒歩3分
②JR中央線「千駄ヶ谷」駅 徒歩7分
③都営大江戸線「国立競技場」駅 徒歩7分
④JR山手線・中央線・都営大江戸線「代々木」駅 徒歩6分
[ライフインフォメーション]
①買物施設
セブンイレブン千駄ヶ谷店 徒歩1分
ローソン北参道駅前店 徒歩5分
スーパーマーケットリコス 千駄ヶ谷1丁目店 徒歩4分
②医療施設
フェニックスメディカルクリニック 徒歩4分
③教育施設
鳩の森保育園 徒歩4分
渋谷区立鳩森小学校 徒歩4分
渋谷区立原宿外苑中学校 徒歩11分
④公園
新宿御苑 徒歩5分
◆管理形態・修繕履歴・共用部
[管理形態]
管理会社 日本ハウズイング(株)
管理形態 全部委託
管理員 日勤
[共用施設・設備]
平置き駐車場:月額1,500円 ※要確認
駐輪場:月額500円 ※要確認
※ご案内について
ご興味をもっていただいたマンションと合わせて、比較検討物件のご内覧をお勧めしております。弊社は、2006年の創業以来、都心部を中心に1700戸を超えるリノベーションマンションの引渡し実績があります。仲介に関する知識だけでなく、リノベーションに関しても経験豊富な専門スタッフがお客様の目線に立って、比較ポイントなどをご案内いたします。
物件概要
JR東日本中央本線「千駄ヶ谷」駅 徒歩7分
- 情報更新日 2023/09/27
物件の設備状態や改修状況は、必ずご契約前に現場または付帯設備表等でご確認ください
※物件の各種情報及び周辺状況の記載が現状と異なる場合は、現状優先となります
※販売状況は随時更新しておりますが、お客様からの問い合わせ時点で実際の状況と異なる場合がございます
※掲載されている完成予想図は設計段階の図面を基に描き起こしたもので、実際とは異なる場合がございます。なお、予想図に描写されている家財道具は販売対象には含みません。可視性を高めるため壁の一部を透過描写している場合がございます。
マップ
東京都渋谷区千駄ヶ谷4-9-24
この物件を見ている方におすすめの物件
株式会社LogSuite本店ショールーム
0120-991-657
LogSuiteは、利便性とステイタスを兼ね備えた高級物件を数多く取り扱っています。 天然木を多用した高級リノベーション物件「Logmansion」ブランドも好評展開中。都心で物件を探している方、ぜひお問い合わせください。
MORE DETAIL

