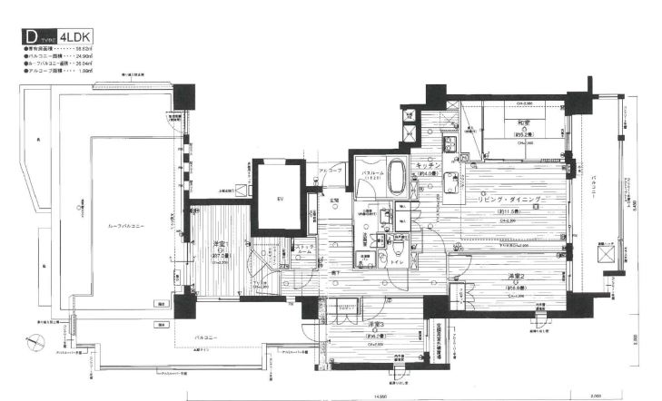
レクセルプラザ篠崎 14階
4LDK/98.62m²/9,980万円













「篠崎」駅徒歩3分。駅近の利便性と静けさを両立した、理想の暮らし。広々ルーフバルコニー付き、陽当たり良好な最上階角部屋4LDK
◆交通・ライフインフォメーション
[交通]
①都営新宿線「篠崎」駅 徒歩3分
[ライフインフォメーション]
①買物施設
サミットストア 篠崎ツインプレイス店 徒歩2分
セブンイレブン篠崎駅西口店 徒歩2分
薬マツモトキヨシ matsukiyoLAB篠崎駅前店 徒歩3分
②医療施設
篠崎医院 徒歩2分
③教育施設
はな保育園 徒歩1分
篠崎若葉幼稚園 徒歩11分
江戸川区立篠崎第四小学校 徒歩6分
江戸川区立篠崎中学校 徒歩8分
④その他
篠崎仲町公園 徒歩4分
江戸川篠崎七郵便局 徒歩6分
三井住友銀行 ATMしのざき文化プラザ出張所 徒歩2分
◆管理形態・修繕履歴・共用部
[管理形態]
管理会社 (株)大京アステージ
管理形態 全部委託
管理員 日勤
[修繕履歴]
2021年 大規模修繕工事済
[共用施設・設備]
オートロック
ペット飼育可:細則有
駐車場:月額12,000円~18,000円 ※空有
駐輪場:月額1,000円~1,500円 ※空無
※ご案内について
ご興味をもっていただいたマンションと合わせて、比較検討物件のご内覧をお勧めしております。弊社は、2006年の創業以来、都心部を中心に1700戸を超えるリノベーションマンションの引渡し実績があります。仲介に関する知識だけでなく、リノベーションに関しても経験豊富な専門スタッフがお客様の目線に立って、比較ポイントなどをご案内いたします。
ローンシミュレーター
(税込)
この毎月のローン返済額は、あくまで試算であり実際のご返済額とは異なる場合があります。お借り入れの可否や金利・返済額の諸条件は、金融機関にご確認ください。
※低金利の時代だから極力、資金をお手元に残すことを希望のお客様が増えています。
※お一人でローンを組む場合、ご年収の8から10倍程度が借入可能額の目安です。
※ご夫婦での収入合算やペアローンもそれぞれのご年収に応じてお借入可能です。
※詳細は、営業担当者にお問い合わせください。
物件概要
- 情報更新日 2026/03/18
- 更新予定日 2026/04/01
物件の設備状態や改修状況は、必ずご契約前に現場または付帯設備表等でご確認ください
※物件の各種情報及び周辺状況の記載が現状と異なる場合は、現状優先となります
※販売状況は随時更新しておりますが、お客様からの問い合わせ時点で実際の状況と異なる場合がございます
※掲載されている完成予想図は設計段階の図面を基に描き起こしたもので、実際とは異なる場合がございます。なお、予想図に描写されている家財道具は販売対象には含みません。可視性を高めるため壁の一部を透過描写している場合がございます。
マップ
東京都江戸川区篠崎町7-21-21
この物件を見ている方におすすめの物件
株式会社LogSuite本店ショールーム
0120-991-657
LogSuiteは、利便性とステイタスを兼ね備えた高級物件を数多く取り扱っています。 天然木を多用した高級リノベーション物件「Logmansion」ブランドも好評展開中。都心で物件を探している方、ぜひお問い合わせください。
MORE DETAIL

