成約済 クレッセント蒲田東Ⅱ B1階・1階
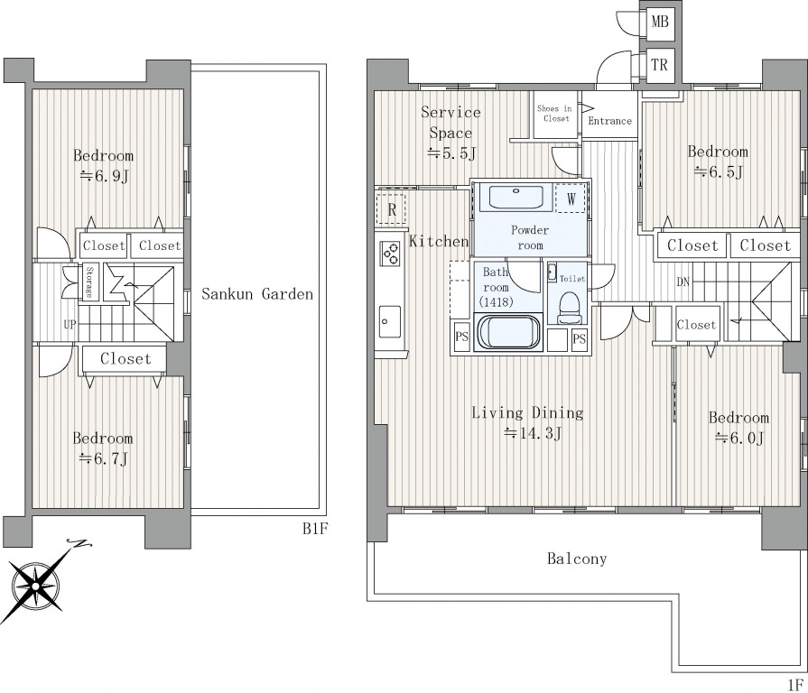
4LDK+S/114.22m²










都心アクセス良好、住み心地は穏やかに。区立小学校至近。専有面積114㎡超。サンクンガーデン付き4SLDKメゾネット。専用使用権付き駐車場あり。
◆交通・ライフインフォメーション
[交通]
①京急本線「梅屋敷」駅 徒歩11分
②京急本線・空港線「京急蒲田」駅 徒歩13分
③京急空港線「糀谷」駅 徒歩15分
[ライフインフォメーション]
①買物施設
まいばすけっと北糀谷1丁目店 徒歩4分
セブンイレブン大田区東蒲田キネマ通り店 徒歩4分
ツルハドラッグ東蒲田店 徒歩6分
②医療施設
京浜病院 徒歩6分
③教育施設
西糀谷しろはと保育園 徒歩5分
北糀谷幼稚園 徒歩3分
大田区立北糀谷小学校 徒歩1分
大田区立糀谷中学校 徒歩13分
④その他
北糀谷中央公園 徒歩2分
西糀谷児童館 徒歩8分
東蒲田二郵便局 徒歩6分
三井住友銀行 羽田出張所 徒歩5分
◆管理形態・修繕履歴・共用部
[管理形態]
管理会社 (株)モリモトクオリティ
管理形態 全部委託
管理員 日勤
[共用施設・設備]
オートロック・宅配ボックス
トランクルーム:住戸付設
専用使用権付き駐車場:月額9,000円 ※空有
駐輪場:※要確認
※ご案内について
ご興味をもっていただいたマンションと合わせて、比較検討物件のご内覧をお勧めしております。弊社は、2006年の創業以来、都心部を中心に1700戸を超えるリノベーションマンションの引渡し実績があります。仲介に関する知識だけでなく、リノベーションに関しても経験豊富な専門スタッフがお客様の目線に立って、比較ポイントなどをご案内いたします。
物件概要
京急本線・空港線「京急蒲田」駅 徒歩13分
京急空港線「糀谷」駅 徒歩15分
- 情報更新日 2026/02/25
物件の設備状態や改修状況は、必ずご契約前に現場または付帯設備表等でご確認ください
※物件の各種情報及び周辺状況の記載が現状と異なる場合は、現状優先となります
※販売状況は随時更新しておりますが、お客様からの問い合わせ時点で実際の状況と異なる場合がございます
※掲載されている完成予想図は設計段階の図面を基に描き起こしたもので、実際とは異なる場合がございます。なお、予想図に描写されている家財道具は販売対象には含みません。可視性を高めるため壁の一部を透過描写している場合がございます。
マップ
東京都大田区北糀谷2-8-5
この物件を見ている方におすすめの物件
株式会社LogSuite本店ショールーム
0120-991-657
LogSuiteは、利便性とステイタスを兼ね備えた高級物件を数多く取り扱っています。 天然木を多用した高級リノベーション物件「Logmansion」ブランドも好評展開中。都心で物件を探している方、ぜひお問い合わせください。
MORE DETAIL

