自由が丘ハイタウン 4階
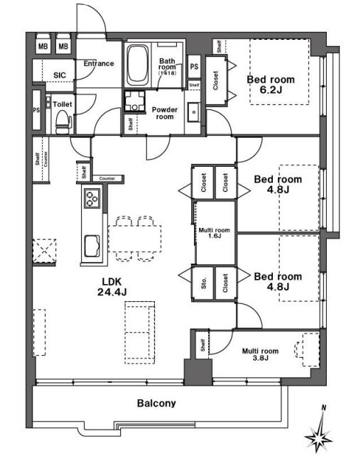
4LDK/97.33m²/11,480万円










「自由が丘」駅徒歩13分。自由が丘を日常にする、穏やかな住環境と軽快なアクセス。収納豊富・陽当たり良好な南東角部屋4LDK
◆交通・ライフインフォメーション
[交通]
①東急大井町線・東横線「自由が丘」駅 徒歩13分
②東急大井町線「九品仏」駅 徒歩15分
③東急東横線「都立大学」駅 徒歩18分
[ライフインフォメーション]
①買物施設
ライフ目黒八雲店 徒歩4分
ラ・ヴィータ自由が丘 徒歩10分
セブンイレブン自由が丘学園通り店 徒歩5分
クリエイトS・D目黒八雲店 徒歩2分
②医療施設
世田谷神経内科病院 徒歩6分
③教育施設
にじいろ保育園八雲 徒歩2分
若草幼稚園 徒歩5分
目黒区立宮前小学校 徒歩6分
目黒区立第十中学校 徒歩22分
④その他
宮前公園 徒歩7分
世田谷深沢一郵便局 徒歩7分
みずほ銀行ATM(自由が丘支店) 徒歩11分
◆管理形態・修繕履歴・共用部
[管理形態]
管理会社 (株)東急コミュニティー
管理形態 全部委託
管理員 日勤
[修繕履歴]
2018年 大規模修繕工事実施済
[共用施設・設備]
宅配ボックス
トランクルーム:※要確認
駐車場:※要確認
駐輪場:※要確認
※ご案内について
ご興味をもっていただいたマンションと合わせて、比較検討物件のご内覧をお勧めしております。弊社は、2006年の創業以来、都心部を中心に1700戸を超えるリノベーションマンションの引渡し実績があります。仲介に関する知識だけでなく、リノベーションに関しても経験豊富な専門スタッフがお客様の目線に立って、比較ポイントなどをご案内いたします。
ローンシミュレーター
(税込)
この毎月のローン返済額は、あくまで試算であり実際のご返済額とは異なる場合があります。お借り入れの可否や金利・返済額の諸条件は、金融機関にご確認ください。
※低金利の時代だから極力、資金をお手元に残すことを希望のお客様が増えています。
※お一人でローンを組む場合、ご年収の8から10倍程度が借入可能額の目安です。
※ご夫婦での収入合算やペアローンもそれぞれのご年収に応じてお借入可能です。
※詳細は、営業担当者にお問い合わせください。
物件概要
東急大井町線「九品仏」駅 徒歩15分
東急東横線「都立大学」駅 徒歩18分
バス停「産能大前」停徒歩3分
- 情報更新日 2026/01/28
- 更新予定日 2026/02/11
物件の設備状態や改修状況は、必ずご契約前に現場または付帯設備表等でご確認ください
※物件の各種情報及び周辺状況の記載が現状と異なる場合は、現状優先となります
※販売状況は随時更新しておりますが、お客様からの問い合わせ時点で実際の状況と異なる場合がございます
※掲載されている完成予想図は設計段階の図面を基に描き起こしたもので、実際とは異なる場合がございます。なお、予想図に描写されている家財道具は販売対象には含みません。可視性を高めるため壁の一部を透過描写している場合がございます。
マップ
東京都目黒区自由が丘3-16-19
この物件を見ている方におすすめの物件
株式会社LogSuite本店ショールーム
0120-991-657
LogSuiteは、利便性とステイタスを兼ね備えた高級物件を数多く取り扱っています。 天然木を多用した高級リノベーション物件「Logmansion」ブランドも好評展開中。都心で物件を探している方、ぜひお問い合わせください。
MORE DETAIL

