成約済 クレッセント東京リプライム 3階
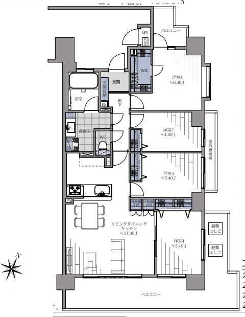
4LDK/88.05m²




「大鳥居」駅徒歩4分の駅近。3面採光のある角部屋4LDK。無償の専用駐車場あり。ペット2匹まで飼育可能。
◆交通・ライフインフォメーション
[交通]
①京急空港線「大鳥居」駅 徒歩4分
②京急空港線「穴守稲荷」駅 徒歩6分
③京急空港線・東京モノレール「天空橋」駅 徒歩17分
[ライフインフォメーション]
①買物施設
まいばすけっと大鳥居駅南 徒歩3分
ローソン羽田一丁目店 徒歩4分
ツルハドラッグ大鳥居駅前店 徒歩4分
②医療施設
山縣医院 徒歩2分
③教育施設
MIRATZ大鳥居保育園 徒歩4分
簡野学園ふぞく幼稚園 徒歩20分
大田区立萩中小学校 徒歩7分
大田区立出雲中学校 徒歩6分
④その他
萩中公園 徒歩4分
大田萩中三郵便局 徒歩5分
三菱UFJ銀行 ATMコーナー大鳥居駅前 徒歩6分
◆管理形態・修繕履歴・共用部
[管理形態]
管理会社 (株)モリモトクオリティ
管理形態 全部委託
管理員 日勤
[共用施設・設備]
オートロック・宅配ボックス
ペット飼育可:細則有
専用使用権付き駐車場:無償
駐輪場:月額200円 ※空有
※ご案内について
ご興味をもっていただいたマンションと合わせて、比較検討物件のご内覧をお勧めしております。弊社は、2006年の創業以来、都心部を中心に1700戸を超えるリノベーションマンションの引渡し実績があります。仲介に関する知識だけでなく、リノベーションに関しても経験豊富な専門スタッフがお客様の目線に立って、比較ポイントなどをご案内いたします。
物件概要
京急空港線「穴守稲荷」駅 徒歩6分
京急空港線・東京モノレール「天空橋」駅 徒歩17分
- 情報更新日 2025/12/03
物件の設備状態や改修状況は、必ずご契約前に現場または付帯設備表等でご確認ください
※物件の各種情報及び周辺状況の記載が現状と異なる場合は、現状優先となります
※販売状況は随時更新しておりますが、お客様からの問い合わせ時点で実際の状況と異なる場合がございます
※掲載されている完成予想図は設計段階の図面を基に描き起こしたもので、実際とは異なる場合がございます。なお、予想図に描写されている家財道具は販売対象には含みません。可視性を高めるため壁の一部を透過描写している場合がございます。
マップ
東京都大田区羽田1-13-1
この物件を見ている方におすすめの物件
株式会社LogSuite本店ショールーム
0120-991-657
LogSuiteは、利便性とステイタスを兼ね備えた高級物件を数多く取り扱っています。 天然木を多用した高級リノベーション物件「Logmansion」ブランドも好評展開中。都心で物件を探している方、ぜひお問い合わせください。
MORE DETAIL

