成約済 グランドメゾン等々力 3階
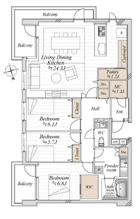
3LDK/105.80m²




「等々力」駅徒歩9分。緑豊かな住環境のグランドメゾンシリーズ。100㎡超、陽当たり・眺望良好な最上階・南東角部屋
◆交通・ライフインフォメーション
[交通]
①東急大井町線「等々力」駅 徒歩9分
②東急大井町線「尾山台」駅 徒歩10分
③東急大井町線「上野毛」駅 徒歩19分
[ライフインフォメーション]
①買物施設
スーパーバリュー等々力店 徒歩10分
ファミリーマート等々力四丁目店 徒歩5分
トモズ等々力北口店 徒歩8分
②医療施設
等々力内科クリニック 徒歩10分
③教育施設
等々力中央保育園 徒歩3分
深沢幼稚園 徒歩12分
世田谷区立等々力小学校 徒歩10分
世田谷区立東深沢中学校 徒歩15分
④その他
等々力六丁目公園 徒歩10分
世田谷区立等々力児童館 徒歩2分
世田谷等々力郵便局 徒歩7分
三菱UFJ銀行 ATMコーナー等々力駅前 徒歩7分
◆管理形態・修繕履歴・共用部
[管理形態]
管理会社 積水ハウスGMパートナーズ(株)
管理形態 全部委託
管理員 日勤
[共用施設・設備]
オートロック・宅配ボックス・コンシェルジュサービス付き
ペット飼育可:細則有
トランクルーム:住戸付設
駐車場:月額28,000円~31,000円 ※空有
駐輪場:月額300円 ※空有
※ご案内について
ご興味をもっていただいたマンションと合わせて、比較検討物件のご内覧をお勧めしております。弊社は、2006年の創業以来、都心部を中心に1700戸を超えるリノベーションマンションの引渡し実績があります。仲介に関する知識だけでなく、リノベーションに関しても経験豊富な専門スタッフがお客様の目線に立って、比較ポイントなどをご案内いたします。
物件概要
東急大井町線「尾山台」駅 徒歩10分
東急大井町線「上野毛」駅 徒歩19分
- 情報更新日 2025/02/19
物件の設備状態や改修状況は、必ずご契約前に現場または付帯設備表等でご確認ください
※物件の各種情報及び周辺状況の記載が現状と異なる場合は、現状優先となります
※販売状況は随時更新しておりますが、お客様からの問い合わせ時点で実際の状況と異なる場合がございます
※掲載されている完成予想図は設計段階の図面を基に描き起こしたもので、実際とは異なる場合がございます。なお、予想図に描写されている家財道具は販売対象には含みません。可視性を高めるため壁の一部を透過描写している場合がございます。
マップ
東京都世田谷区等々力3-28-17
この物件を見ている方におすすめの物件
株式会社LogSuite本店ショールーム
0120-991-657
LogSuiteは、利便性とステイタスを兼ね備えた高級物件を数多く取り扱っています。 天然木を多用した高級リノベーション物件「Logmansion」ブランドも好評展開中。都心で物件を探している方、ぜひお問い合わせください。
MORE DETAIL

