成約済 シティタワーズ豊洲ザ・ツインノースタワー 20階
3LDK/80.12m²


















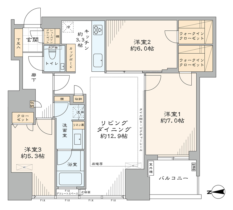
設備概要
- Point.1 最低2年の保証付き
- Point.2 頭金無しでフルローン検討可能
- Point.3 「豊洲」駅徒歩6分
- Point.4 ビルトイン食洗機・オーブンレンジ設置あり
- Point.5 ビューバスあり
- Point.6 眺望良好
- Point.7 運河ビュー
- Point.8 WIC×2、SICあり
- Point.9 充実した共用施設
- Point.10 コンシェルジュサービス付き
- Point.11 内廊下設計
- Point.12 各階ゴミステーションあり
- Point.13 制震構造
- Point.14 洗車スペースあり
- Point.15 マンション内に保育所・デンタルクリニックあり
- Point.16 区立小・中学校徒歩10分圏内
「豊洲」駅徒歩6分。利便性の高い豊洲エリアのランドマーク的ツインタワー。夜景を望むビューバスあり、眺望良好の3LDK
◆交通・ライフインフォメーション
[交通]
①東京メトロ有楽町線・ゆりかもめ線「豊洲」駅 徒歩6分
②JR京葉線「越中島」駅 徒歩22分
③東京メトロ有楽町線・都営大江戸線「月島」駅 徒歩29分
[ライフインフォメーション]
①買物施設
文化堂 豊洲店 徒歩3分
セブンイレブン豊洲店 徒歩3分
薬 マツモトキヨシ豊洲店 徒歩4分
スーパービバホーム豊洲店 徒歩4分
アーバンドックららぽーと豊洲店 徒歩10分
②医療施設
豊洲医院 徒歩3分
③教育施設
豊洲保育園 徒歩5分
江東区立豊洲幼稚園 徒歩6分
江東区立豊洲北小学校 徒歩4分
江東区立深川第五中学校 徒歩10分
④その他
豊洲三丁目公園 徒歩5分
江東区立豊洲児童館 徒歩10分
江東豊洲郵便局 徒歩6分
三井住友銀行 豊洲支店 徒歩9分
⑤娯楽施設・観光名所
豊洲 千客万来 徒歩28分
葛西臨海水族園 車で15分
東京ディズニーリゾート 車で18分
◆管理形態・修繕履歴・共用部
[管理形態]
管理会社 住友不動産建物サービス(株)
管理形態 全部委託
管理員 日勤
[修繕履歴]
2023年 1月 大規模修繕工事
2015年 5月 鉄部塗装工事
修繕積立金総額:3,321,252,951円(2024年3月現在)
[共用施設・設備]
ダブルオートロック・宅配ボックス・コンシェルジュサービス付き
ペット飼育可:細則有
駐車場:月額25,000円~60,000円 ※空有
駐輪場:各住戸付設のサイクルトランクを使用
・ゲストルーム・シアター・カラオケルーム
・ミーティングルーム・オーナーズラウンジ・屋上庭園
・キャナルウォーク・ベイウォーク・洗車スペース
・レンタサイクル
※ご案内について
ご興味をもっていただいたマンションと合わせて、比較検討物件のご内覧をお勧めしております。弊社は、2006年の創業以来、都心部を中心に1700戸を超えるリノベーションマンションの引渡し実績があります。仲介に関する知識だけでなく、リノベーションに関しても経験豊富な専門スタッフがお客様の目線に立って、比較ポイントなどをご案内いたします。
物件概要
JR京葉線「越中島」駅 徒歩22分
東京メトロ有楽町線・都営大江戸線「月島」駅 徒歩29分
- 情報更新日 2025/06/26
物件の設備状態や改修状況は、必ずご契約前に現場または付帯設備表等でご確認ください
※物件の各種情報及び周辺状況の記載が現状と異なる場合は、現状優先となります
※販売状況は随時更新しておりますが、お客様からの問い合わせ時点で実際の状況と異なる場合がございます
※掲載されている完成予想図は設計段階の図面を基に描き起こしたもので、実際とは異なる場合がございます。なお、予想図に描写されている家財道具は販売対象には含みません。可視性を高めるため壁の一部を透過描写している場合がございます。
マップ
東京都江東区豊洲3-4-2
この物件を見ている方におすすめの物件
株式会社LogSuite本店ショールーム
0120-991-657
LogSuiteは、利便性とステイタスを兼ね備えた高級物件を数多く取り扱っています。 天然木を多用した高級リノベーション物件「Logmansion」ブランドも好評展開中。都心で物件を探している方、ぜひお問い合わせください。
MORE DETAIL

