成約済 イストワール碑文谷 4階
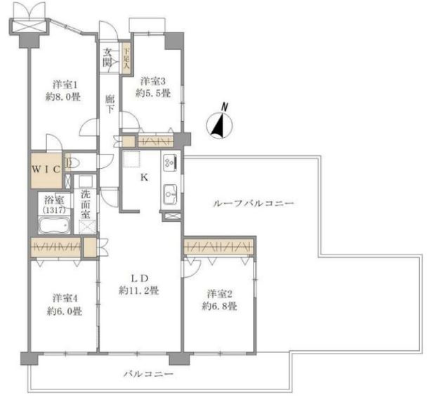
4LDK/88.94m²


















「学芸大学」駅徒歩13分。「目黒」駅へバスアクセス可能。44㎡ルーフバルコニー付き4LDK。陽当たり良好な角部屋
◆交通・ライフインフォメーション
[交通]
①東急東横線「学芸大学」駅 徒歩13分
②東急東横線「都立大学」駅 自転車8分
③東急目黒線「西小山」駅 自転車7分
[ライフインフォメーション]
①買物施設
まいばすけっと碑文谷1丁目 徒歩2分
イオンスタイル碑文谷 徒歩7分
ファミリーマート碑文谷一丁目店 徒歩2分
サンドラッグ学芸大学駅前店 徒歩12分
②医療施設
ひもんや内科・消化器科診療所 徒歩1分
③教育施設
ひもんや保育園 徒歩2分
目黒サレジオ幼稚園 徒歩3分
目黒区立碑小学校 徒歩8分
目黒区立第七中学校 徒歩5分
④その他
目黒区立田向公園 徒歩3分
碑文谷公園 徒歩10分
目黒碑文谷二郵便局 徒歩2分
みずほ銀行碑文谷出張所 徒歩8分
◆管理形態・修繕履歴・共用部
[管理形態]
管理会社 長谷工コミュニティ
管理形態 全部委託
管理員 日勤
[修繕履歴]
令和5年 大規模修繕工事
[共用施設・設備]
オートロック・宅配ボックス
ペット飼育可:小鳥・観賞魚のみ
駐車場:月額30,000円~31,000円 ※要確認
駐輪場:月額500円 ※要確認
※ご案内について
ご興味をもっていただいたマンションと合わせて、比較検討物件のご内覧をお勧めしております。弊社は、2006年の創業以来、都心部を中心に1700戸を超えるリノベーションマンションの引渡し実績があります。仲介に関する知識だけでなく、リノベーションに関しても経験豊富な専門スタッフがお客様の目線に立って、比較ポイントなどをご案内いたします。
物件概要
東急東横線「都立大学」駅 徒歩21分
東急目黒線「西小山」駅 徒歩21分
「碑文谷二丁目」バス停徒歩2分
- 情報更新日 2025/01/09
物件の設備状態や改修状況は、必ずご契約前に現場または付帯設備表等でご確認ください
※物件の各種情報及び周辺状況の記載が現状と異なる場合は、現状優先となります
※販売状況は随時更新しておりますが、お客様からの問い合わせ時点で実際の状況と異なる場合がございます
※掲載されている完成予想図は設計段階の図面を基に描き起こしたもので、実際とは異なる場合がございます。なお、予想図に描写されている家財道具は販売対象には含みません。可視性を高めるため壁の一部を透過描写している場合がございます。
マップ
東京都目黒区碑文谷2-6-22
この物件を見ている方におすすめの物件
株式会社LogSuite本店ショールーム
0120-991-657
LogSuiteは、利便性とステイタスを兼ね備えた高級物件を数多く取り扱っています。 天然木を多用した高級リノベーション物件「Logmansion」ブランドも好評展開中。都心で物件を探している方、ぜひお問い合わせください。
MORE DETAIL

