成約済 センチュリーパークタワー 28階
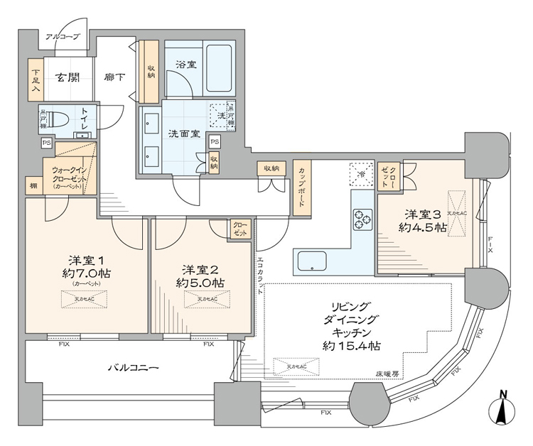
3LDK/82.26m²
























「月島」駅徒歩9分。タワーレジデンスならではの眺望・夜景が望める。陽当たり良好な開放感溢れる、南東角部屋・3LDK
◆交通・ライフインフォメーション
[交通]
①東京メトロ有楽町線・都営大江戸線「月島」駅 徒歩9分
②JR京葉線・東京メトロ日比谷線「八丁堀」駅 徒歩11分
③JR京葉線「越中島」駅 徒歩15分
[ライフインフォメーション]
①買物施設
マルエツ 佃店 徒歩2分
晴海アイランドトリトンスクエア 徒歩24分
ナチュラルローソン佃二丁目店 徒歩1分
薬 マツモトキヨシ matsukiyoLAB佃二丁目店 徒歩1分
②医療施設
石川島記念病院 徒歩4分
③教育施設
ほっぺるランド佃 徒歩1分
月島幼稚園 徒歩10分
中央区立佃島小学校 徒歩3分
中央区立佃中学校 徒歩3分
④その他
中央区立佃公園 徒歩2分
中央区立石川島公園 徒歩3分
佃児童館 徒歩2分
リバーシティ21郵便局 徒歩3分
みずほ銀行月島出張所 徒歩12分
⑤娯楽施設・観光名所
葛西臨海水族園 車で18分
東京ディズニーリゾート 車で20分
◆管理形態・修繕履歴・共用部
[管理形態]
管理会社 三井不動産レジデンシャルサービス(株)
管理形態 全部委託
管理員 日勤
[修繕履歴]
平成30年 大規模修繕工事・各給水ポンプ更新工事
修繕積立金総額:2,059,650,009円(令和6年3月現在)
[共用施設・設備]
オートロック・宅配ボックス・コンシェルジュサービス付き
ペット飼育可:細則有
トランクルーム:住戸付設
駐車場:月額30,000円~69,000円 ※空有
駐輪場:月額300円~1,000円 ※空有
・ラウンジ・キッズルーム・デッキテラス
・コミュニティルーム・マナーハウス・ライブラリー
・ゲストスイート
※ご案内について
ご興味をもっていただいたマンションと合わせて、比較検討物件のご内覧をお勧めしております。弊社は、2006年の創業以来、都心部を中心に1700戸を超えるリノベーションマンションの引渡し実績があります。仲介に関する知識だけでなく、リノベーションに関しても経験豊富な専門スタッフがお客様の目線に立って、比較ポイントなどをご案内いたします。
物件概要
JR京葉線・東京メトロ日比谷線「八丁堀」駅 徒歩11分
JR京葉線「越中島」駅 徒歩15分
- 情報更新日 2025/07/29
物件の設備状態や改修状況は、必ずご契約前に現場または付帯設備表等でご確認ください
※物件の各種情報及び周辺状況の記載が現状と異なる場合は、現状優先となります
※販売状況は随時更新しておりますが、お客様からの問い合わせ時点で実際の状況と異なる場合がございます
※掲載されている完成予想図は設計段階の図面を基に描き起こしたもので、実際とは異なる場合がございます。なお、予想図に描写されている家財道具は販売対象には含みません。可視性を高めるため壁の一部を透過描写している場合がございます。
マップ
東京都中央区佃2-1-1
株式会社LogSuite本店ショールーム
0120-991-657
LogSuiteは、利便性とステイタスを兼ね備えた高級物件を数多く取り扱っています。 天然木を多用した高級リノベーション物件「Logmansion」ブランドも好評展開中。都心で物件を探している方、ぜひお問い合わせください。
MORE DETAIL

