成約済 三井音羽ハイツ 6階
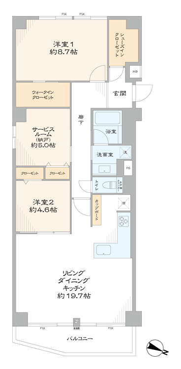
2LDK+S/90.37m²










































「護国寺」駅徒歩5分。人気の文教エリア「音羽一勝目」アドレス。収納充実、3方角部屋の2SLDK





















◆交通・ライフインフォメーション
[交通]
①東京メトロ有楽町線「護国寺」駅 徒歩5分
②東京メトロ有楽町線「江戸川橋」駅 徒歩7分
③東京メトロ丸ノ内線「茗荷谷」駅 徒歩14分
[ライフインフォメーション]
①買物施設
スーパーマーケットリコス 音羽1丁目店 徒歩4分
ローソン 文京音羽一丁目店 徒歩1分
クスリのシバタ 音羽店 徒歩7分
②医療施設
上田医院 徒歩1分
③教育施設
八千代保育園 徒歩2分
文京区立小日向台町幼稚園 徒歩10分
文京区立小日向台町小学校 徒歩10分
文京区立音羽中学校 徒歩8分
④その他
文京区立関口台公園 徒歩3分
文京区立新大塚公園 徒歩9分
文京区立小日向台町児童館 徒歩10分
文京音羽郵便局 徒歩1分
みずほ銀行 護国寺駅前出張所 徒歩4分
◆管理形態・修繕履歴・共用部
[管理形態]
管理会社 (株)東急コミュニティー
管理形態 全部委託
管理員 日勤
[修繕履歴]
2021年 10月 大規模修繕工事
2020年 8月 自動火災報知設備更新工事
2011年 6月 給水給湯管交換工事
修繕積立金総額:39,110,613円(2023年3月31日現在)
[共用施設・設備]
オートロック
ペット飼育可:小型犬・猫、1住戸1匹
駐輪場:年額2,000円 ※空有
※ご案内について
ご興味をもっていただいたマンションと合わせて、比較検討物件のご内覧をお勧めしております。弊社は、2006年の創業以来、都心部を中心に1700戸を超えるリノベーションマンションの引渡し実績があります。仲介に関する知識だけでなく、リノベーションに関しても経験豊富な専門スタッフがお客様の目線に立って、比較ポイントなどをご案内いたします。
物件概要
東京メトロ有楽町線「江戸川橋」駅 徒歩7分
東京メトロ丸ノ内線「茗荷谷」駅 徒歩14分
- 情報更新日 2025/03/12
物件の設備状態や改修状況は、必ずご契約前に現場または付帯設備表等でご確認ください
※物件の各種情報及び周辺状況の記載が現状と異なる場合は、現状優先となります
※販売状況は随時更新しておりますが、お客様からの問い合わせ時点で実際の状況と異なる場合がございます
※掲載されている完成予想図は設計段階の図面を基に描き起こしたもので、実際とは異なる場合がございます。なお、予想図に描写されている家財道具は販売対象には含みません。可視性を高めるため壁の一部を透過描写している場合がございます。
マップ
東京都文京区音羽1-14-2
この物件を見ている方におすすめの物件
株式会社LogSuite本店ショールーム
0120-991-657
LogSuiteは、利便性とステイタスを兼ね備えた高級物件を数多く取り扱っています。 天然木を多用した高級リノベーション物件「Logmansion」ブランドも好評展開中。都心で物件を探している方、ぜひお問い合わせください。
MORE DETAIL

