成約済 シエルズガーデンエールタワー 21階
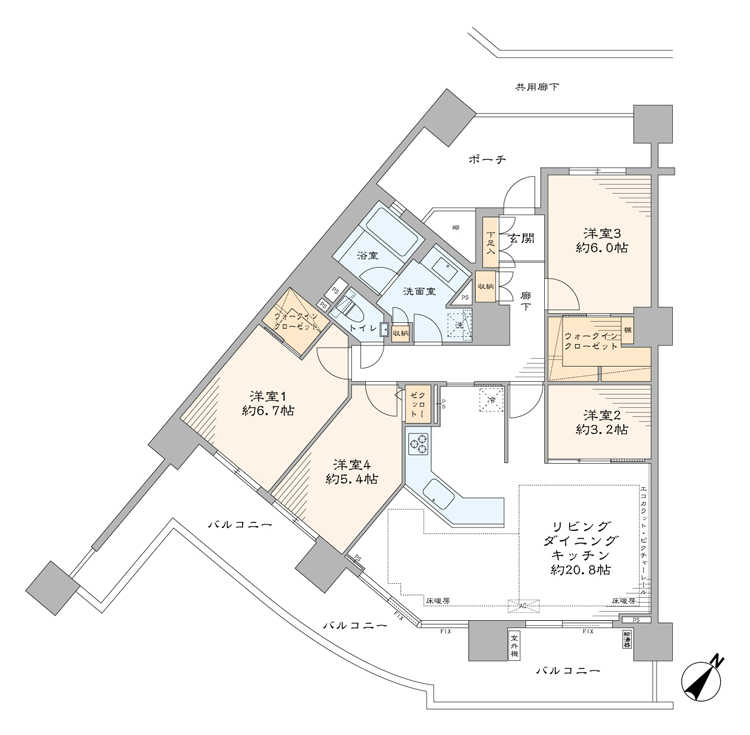
4LDK/98.98m²








































コンシェルジュサービス付き。充実した共用施設。ワイドスパン設計で、多摩川ビューの開放感のある4LDK




















◆交通・ライフインフォメーション
[交通]
①東急多摩川線「下丸子」駅 徒歩12分
②東急多摩川線「武蔵新田」駅 徒歩13分
③JR南武線「平間」駅 徒歩18分
[ライフインフォメーション]
①買物施設
東武ストア 下丸子店 徒歩3分
ファミリーマート下丸子三丁目店 徒歩7分
ウェルパーク下丸子店 徒歩5分
おうちDEPO下丸子店 徒歩14分
②医療施設
難波メディカルクリニック 徒歩5分
③教育施設
大田区立下丸子保育園 徒歩9分
丸子幼稚園 徒歩12分
大田区立矢口西小学校 徒歩11分
大田区立矢口中学校 徒歩5分
④その他
下丸子二丁目公園 徒歩8分
下丸子児童館 徒歩9分
大田下丸子郵便局 徒歩8分
三井住友銀行矢口出張所 徒歩15分
◆管理形態・修繕履歴・共用部
[管理形態]
管理会社 野村不動産パートナーズ(株)
管理形態 全部委託
管理員 日勤
[修繕履歴]
2022年 自動火災報知機
2020年 給水ポンプ
2016年 大規模修繕工事
全体共用部修繕積立金総額:474,448,646円(令和5年8月現在)
[共用施設・設備]
オートロック・宅配ボックス・コンシェルジュサービス付き
ペット飼育可:大型犬飼育可
駐車場:月額9,500円~13,500円 ※空無
駐輪場:月額100円~200円 ※空有
・ゲストルーム・キッズルーム・シアタールーム
※ご案内について
ご興味をもっていただいたマンションと合わせて、比較検討物件のご内覧をお勧めしております。弊社は、2006年の創業以来、都心部を中心に1700戸を超えるリノベーションマンションの引渡し実績があります。仲介に関する知識だけでなく、リノベーションに関しても経験豊富な専門スタッフがお客様の目線に立って、比較ポイントなどをご案内いたします。
物件概要
東急多摩川線「武蔵新田」駅 徒歩13分
JR南武線「平間」駅 徒歩18分
- 情報更新日 2024/08/28
物件の設備状態や改修状況は、必ずご契約前に現場または付帯設備表等でご確認ください
※物件の各種情報及び周辺状況の記載が現状と異なる場合は、現状優先となります
※販売状況は随時更新しておりますが、お客様からの問い合わせ時点で実際の状況と異なる場合がございます
※掲載されている完成予想図は設計段階の図面を基に描き起こしたもので、実際とは異なる場合がございます。なお、予想図に描写されている家財道具は販売対象には含みません。可視性を高めるため壁の一部を透過描写している場合がございます。
マップ
東京都大田区下丸子2-12-3
この物件を見ている方におすすめの物件
株式会社LogSuite本店ショールーム
0120-991-657
LogSuiteは、利便性とステイタスを兼ね備えた高級物件を数多く取り扱っています。 天然木を多用した高級リノベーション物件「Logmansion」ブランドも好評展開中。都心で物件を探している方、ぜひお問い合わせください。
MORE DETAIL

