成約済 プラザ江戸川橋 6階・7階
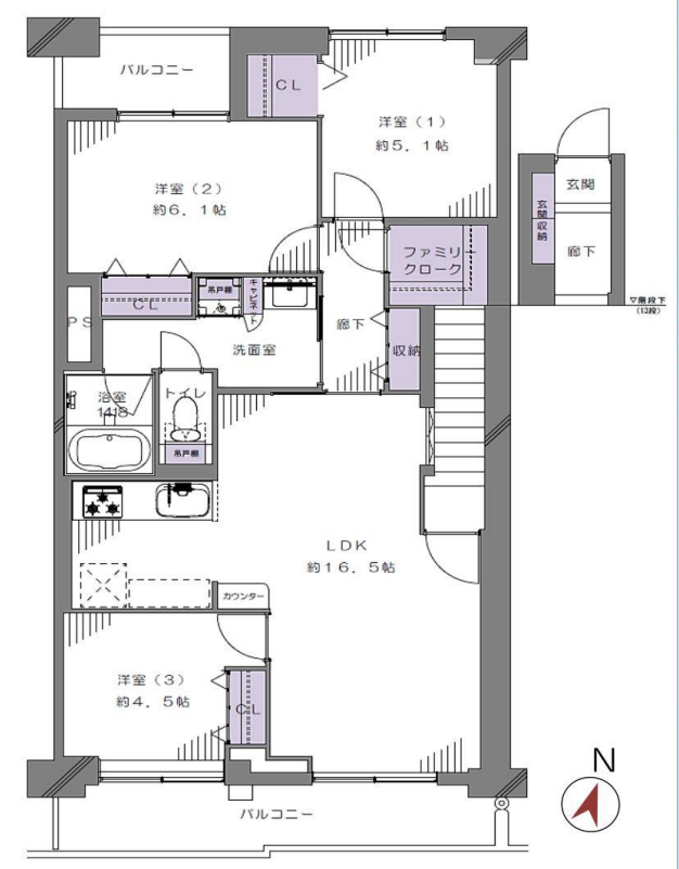
3LDK/81.12m²
















































「江戸川橋」駅徒歩1分の駅近、利便性抜群の立地。二面バルコニー、収納充実のメゾネットタイプ3LDK
























◆交通・ライフインフォメーション
[交通]
①東京メトロ有楽町線「江戸川橋」駅 徒歩1分
②東京メトロ東西線「神楽坂」駅 徒歩13分
③東京メトロ東西線「早稲田」駅 徒歩15分
[ライフインフォメーション]
①買物施設
ナチュラルローソン音羽一丁目店 徒歩3分
ファミリーマート江戸川橋駅西店 徒歩2分
コモディイイダ江戸川橋店 徒歩1分
②医療施設
おとわ内科・脳神経外科クリニック 徒歩6分
③教育施設
SOMPOスマイルキッズ江戸川橋保育園 徒歩2分
文京区立関口台町小学校 徒歩8分
文京区立音羽中学校 徒歩17分
④公園
文京区立江戸川公園 徒歩3分
◆管理形態・修繕履歴・共用部
[管理形態]
管理会社 日本ハウズイング(株)
管理形態 全部委託
管理員 日勤
[修繕履歴]
2023年 10月 LED照明設置工事実施
[共用施設・設備]
宅配ロッカー
駐車場:月額30,000円 ※空無
駐輪場:月額300円 ※空有
※ご案内について
ご興味をもっていただいたマンションと合わせて、比較検討物件のご内覧をお勧めしております。弊社は、2006年の創業以来、都心部を中心に1700戸を超えるリノベーションマンションの引渡し実績があります。仲介に関する知識だけでなく、リノベーションに関しても経験豊富な専門スタッフがお客様の目線に立って、比較ポイントなどをご案内いたします。
物件概要
東京メトロ東西線「早稲田」駅 徒歩15分
東京メトロ丸ノ内線「茗荷谷」駅 徒歩20分
- 情報更新日 2024/12/04
物件の設備状態や改修状況は、必ずご契約前に現場または付帯設備表等でご確認ください
※物件の各種情報及び周辺状況の記載が現状と異なる場合は、現状優先となります
※販売状況は随時更新しておりますが、お客様からの問い合わせ時点で実際の状況と異なる場合がございます
※掲載されている完成予想図は設計段階の図面を基に描き起こしたもので、実際とは異なる場合がございます。なお、予想図に描写されている家財道具は販売対象には含みません。可視性を高めるため壁の一部を透過描写している場合がございます。
マップ
東京都文京区関口1-23-6
この物件を見ている方におすすめの物件
株式会社LogSuite本店ショールーム
0120-991-657
LogSuiteは、利便性とステイタスを兼ね備えた高級物件を数多く取り扱っています。 天然木を多用した高級リノベーション物件「Logmansion」ブランドも好評展開中。都心で物件を探している方、ぜひお問い合わせください。
MORE DETAIL

