成約済 APAガーデンコート等々力 1階
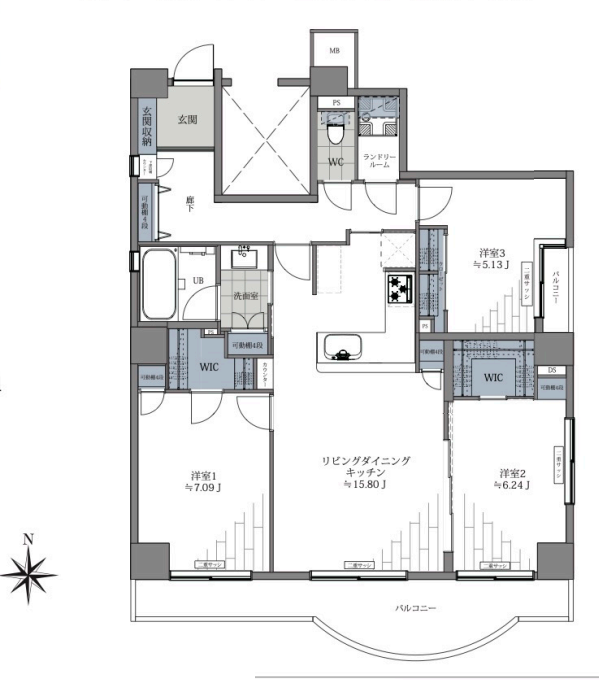
3LDK/87.09m²


























































「自由が丘」駅までバス8分。2件のスーパーが至近に有。日常のお買い物環境が充実。二面採光有りの南東角部屋3LDK





























◆交通・ライフインフォメーション
[交通]
①東急大井町線「尾山台」駅 徒歩14分
②東急東横線・大井町線「自由が丘」駅 徒歩17分
③東急大井町線「等々力」駅 徒歩20分
[ライフインフォメーション]
①買物施設
紀ノ国屋 等々力店 徒歩1分
西友 深沢目黒通り店 徒歩1分
ローソン・スリーエフ 世田谷産能大学前店 徒歩2分
②医療施設
唐沢内科医院 徒歩6分
③教育施設
めぐみ保育園 徒歩5分
世田谷区立東深沢小学校 徒歩8分
世田谷区立東深沢中学校 徒歩12分
④公園
都立駒沢オリンピック公園 徒歩16分
◆管理形態・修繕履歴・共用部
[管理形態]
管理会社 アパコミュニティ(株)
管理形態 全部委託
管理員 巡回
[修繕履歴]
2014年 鉄部塗装工事
2010年 非接触キー工事
2010年 エントランス改修工事
2010年 大規模修繕工事
[共用施設・設備]
オートロック・宅配ボックス
駐輪場:無償(シール代200円)
※ご案内について
ご興味をもっていただいたマンションと合わせて、比較検討物件のご内覧をお勧めしております。弊社は、2006年の創業以来、都心部を中心に1700戸を超えるリノベーションマンションの引渡し実績があります。仲介に関する知識だけでなく、リノベーションに関しても経験豊富な専門スタッフがお客様の目線に立って、比較ポイントなどをご案内いたします。
物件概要
東急東横線・大井町線「自由が丘」駅 徒歩17分
東急大井町線「等々力」駅 徒歩20分
- 情報更新日 2024/10/23
物件の設備状態や改修状況は、必ずご契約前に現場または付帯設備表等でご確認ください
※物件の各種情報及び周辺状況の記載が現状と異なる場合は、現状優先となります
※販売状況は随時更新しておりますが、お客様からの問い合わせ時点で実際の状況と異なる場合がございます
※掲載されている完成予想図は設計段階の図面を基に描き起こしたもので、実際とは異なる場合がございます。なお、予想図に描写されている家財道具は販売対象には含みません。可視性を高めるため壁の一部を透過描写している場合がございます。
マップ
東京都世田谷区等々力7-18-5
この物件を見ている方におすすめの物件
株式会社LogSuite本店ショールーム
0120-991-657
LogSuiteは、利便性とステイタスを兼ね備えた高級物件を数多く取り扱っています。 天然木を多用した高級リノベーション物件「Logmansion」ブランドも好評展開中。都心で物件を探している方、ぜひお問い合わせください。
MORE DETAIL

