成約済 ハイコート目黒花房山 4階
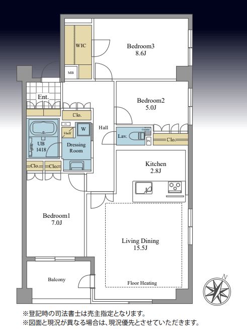
3LDK/92.39m²


































「目黒」駅徒歩3分の閑静な住宅街。利便性と清閑な暮らしが叶う住環境。二面採光のある3LDK

















◆交通・ライフインフォメーション
[交通]
①JR山手線・東京メトロ南北線・都営三田線・目黒線「目黒」駅 徒歩3分
②都営三田線・東京メトロ南北線「白金台」駅 徒歩13分
③JR山手線・東急池上線・都営浅草線「五反田」駅 徒歩18分
[ライフインフォメーション]
①買物施設
ファミリーマート目黒駅東口店 徒歩2分
セブンイレブン目黒セントラルスクエア店 徒歩3分
成城石井 アトレ目黒2店 徒歩4分
アトレ目黒 徒歩4分
②医療施設
目黒みらい内科クリニック 徒歩4分
③教育施設
白金幼稚園 徒歩9分
品川区立第三日野小学校 徒歩9分
品川区立日野学園 徒歩27分
◆管理形態・修繕履歴・共用部
[管理形態]
管理会社 (株)日鉄コミュニティー
管理形態 全部委託
管理員 日勤
[共用施設・設備]
オートロック・宅配ボックス
ペット飼育可:細則有
機械式駐車場:月額40,000円 ※空有
駐輪場:無償(1住戸1台)
※ご案内について
ご興味をもっていただいたマンションと合わせて、比較検討物件のご内覧をお勧めしております。弊社は、2006年の創業以来、都心部を中心に1700戸を超えるリノベーションマンションの引渡し実績があります。仲介に関する知識だけでなく、リノベーションに関しても経験豊富な専門スタッフがお客様の目線に立って、比較ポイントなどをご案内いたします。
物件概要
都営三田線・東京メトロ南北線「白金台」駅 徒歩13分
JR山手線・東急池上線・都営浅草線「五反田」駅 徒歩18分
- 情報更新日 2024/07/16
物件の設備状態や改修状況は、必ずご契約前に現場または付帯設備表等でご確認ください
※物件の各種情報及び周辺状況の記載が現状と異なる場合は、現状優先となります
※販売状況は随時更新しておりますが、お客様からの問い合わせ時点で実際の状況と異なる場合がございます
※掲載されている完成予想図は設計段階の図面を基に描き起こしたもので、実際とは異なる場合がございます。なお、予想図に描写されている家財道具は販売対象には含みません。可視性を高めるため壁の一部を透過描写している場合がございます。
マップ
東京都品川区上大崎3-1-13
この物件を見ている方におすすめの物件
株式会社LogSuite本店ショールーム
0120-991-657
LogSuiteは、利便性とステイタスを兼ね備えた高級物件を数多く取り扱っています。 天然木を多用した高級リノベーション物件「Logmansion」ブランドも好評展開中。都心で物件を探している方、ぜひお問い合わせください。
MORE DETAIL

