成約済 パークシティ成城B棟 3階
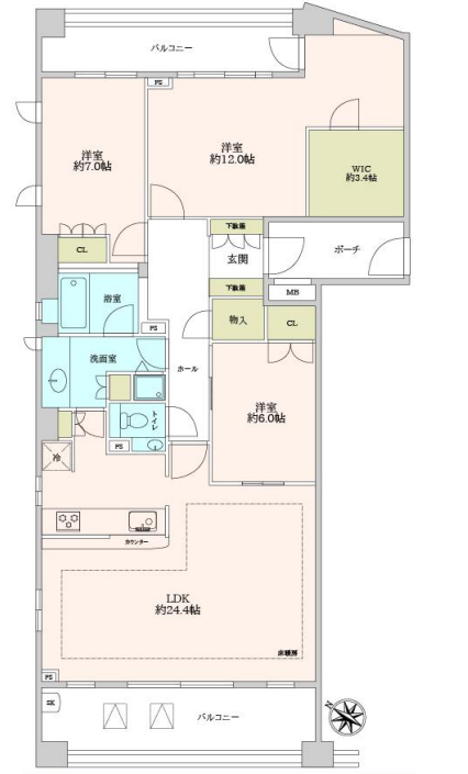
3LDK/116.12m²




































































「成城アドレス」人気のパークシティシリーズ。緑豊かな住環境。専有面積116㎡、広々24帖LDKの角部屋


































◆交通・ライフインフォメーション
[交通]
①小田急小田原線「喜多見」駅 徒歩15分
②小田急小田原線「成城学園前」駅 徒歩18分
③京王線「つつじが丘」駅 徒歩32分
[ライフインフォメーション]
①買物施設
ファミリーマート調布成城富士見橋店 徒歩9分
ナチュラルローソン成城六丁目店 徒歩19分
まいばすけっと成城通り店 徒歩16分
②医療施設
元山医院 徒歩18分
③教育施設
子鹿幼稚園 徒歩8分
世田谷区立明正小学校 徒歩22分
世田谷区立砧中学校 徒歩27分
④公園
世田谷区立きたみふれあい広場 徒歩5分
◆管理形態・修繕履歴・共用部
[管理形態]
管理会社 三井不動産レジデンシャルサービス
管理形態 全部委託
管理員 日勤
[修繕履歴]
2022年 排水ポンプ更新
2021年 鉄部塗装工事
2020年 マンション敷地内防水板設置工事
[共用施設・設備]
オートロック・宅配ボックス
ペット飼育可:規約有
自走式平置き駐車場:月額18,000円 ※空有
駐輪場:※要確認
・櫻ラウンジ・ゲストスイート・キッチンスタジオ
・シアタースタジオ・キッズパーク・石庵
※ご案内について
ご興味をもっていただいたマンションと合わせて、比較検討物件のご内覧をお勧めしております。弊社は、2006年の創業以来、都心部を中心に1700戸を超えるリノベーションマンションの引渡し実績があります。仲介に関する知識だけでなく、リノベーションに関しても経験豊富な専門スタッフがお客様の目線に立って、比較ポイントなどをご案内いたします。
物件概要
小田急小田原線「成城学園前」駅 徒歩18分
京王線「つつじが丘」駅 徒歩32分
- 情報更新日 2024/08/08
物件の設備状態や改修状況は、必ずご契約前に現場または付帯設備表等でご確認ください
※物件の各種情報及び周辺状況の記載が現状と異なる場合は、現状優先となります
※販売状況は随時更新しておりますが、お客様からの問い合わせ時点で実際の状況と異なる場合がございます
※掲載されている完成予想図は設計段階の図面を基に描き起こしたもので、実際とは異なる場合がございます。なお、予想図に描写されている家財道具は販売対象には含みません。可視性を高めるため壁の一部を透過描写している場合がございます。
マップ
東京都世田谷区成城4-33-2
この物件を見ている方におすすめの物件
株式会社LogSuite本店ショールーム
0120-991-657
LogSuiteは、利便性とステイタスを兼ね備えた高級物件を数多く取り扱っています。 天然木を多用した高級リノベーション物件「Logmansion」ブランドも好評展開中。都心で物件を探している方、ぜひお問い合わせください。
MORE DETAIL

